EasyManua.ls Logo

Vertiv Liebert S600E - Installation Drawings

Vertiv Liebert S600E
101 pages
Print Icon
To Next Page IconTo Next Page
To Next Page IconTo Next Page
To Previous Page IconTo Previous Page
To Previous Page IconTo Previous Page
Loading...
USER MANUAL-S600E
25
S600E
2.8
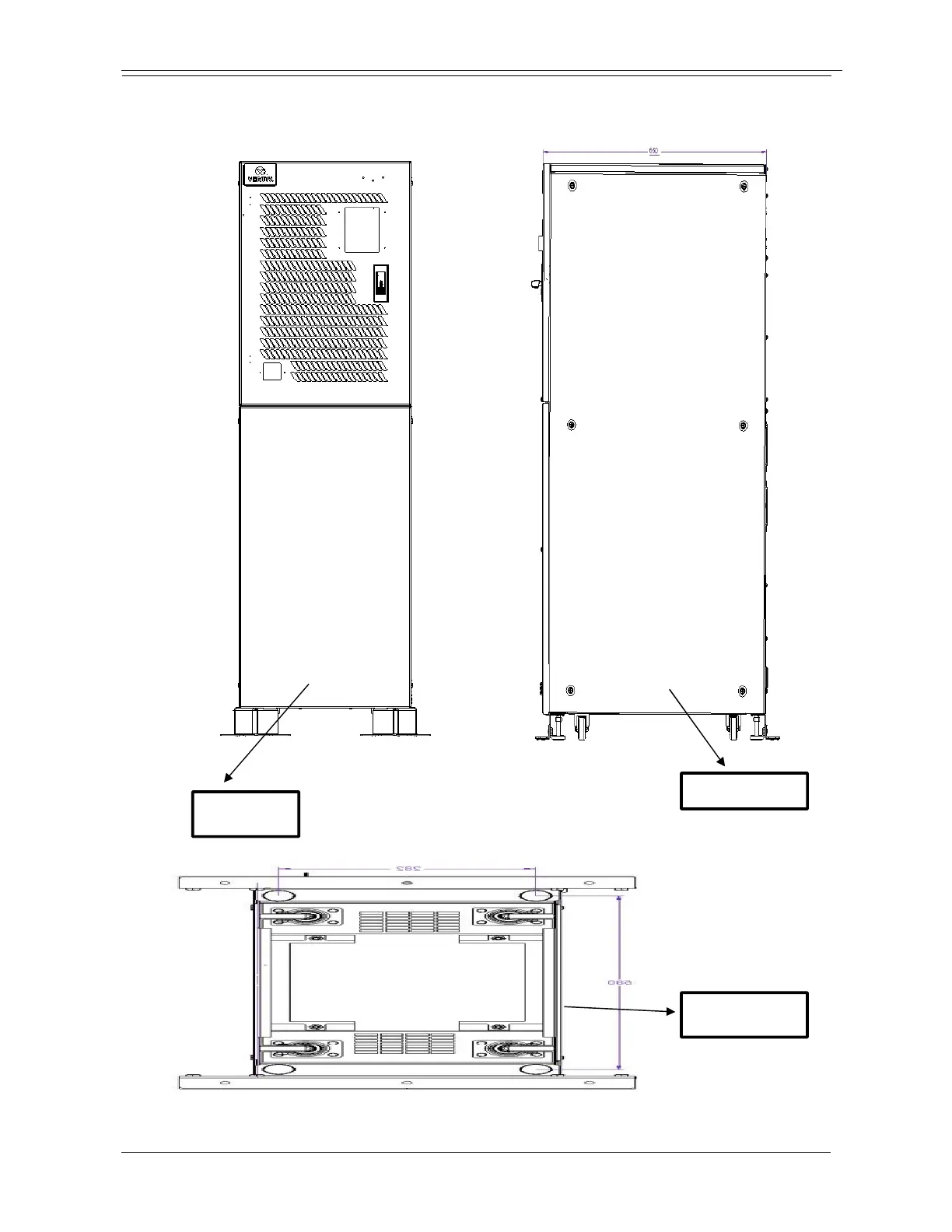
Installation Drawings
Figure 2-4 Front/side/bottom view of the standard UPS (unit: mm)
Front View
Side View
Bottom View

Table of Contents

Related product manuals