EasyManua.ls Logo

Wartsila 46DF - Page 102

Wartsila 46DF
242 pages
Print Icon
To Next Page IconTo Next Page
To Next Page IconTo Next Page
To Previous Page IconTo Previous Page
To Previous Page IconTo Previous Page
Loading...
MDF separator in HFO installations (1S02)
A separator for MDF is recommended also for installations operating primarily on HFO. The
MDF separator can be a smaller size dedicated MDF separator, or a stand-by HFO separator
used for MDF.
Sludge tank (1T05)
The sludge tank should be located directly beneath the separators, or as close as possible
below the separators, unless it is integrated in the separator unit. The sludge pipe must be
continuously falling.
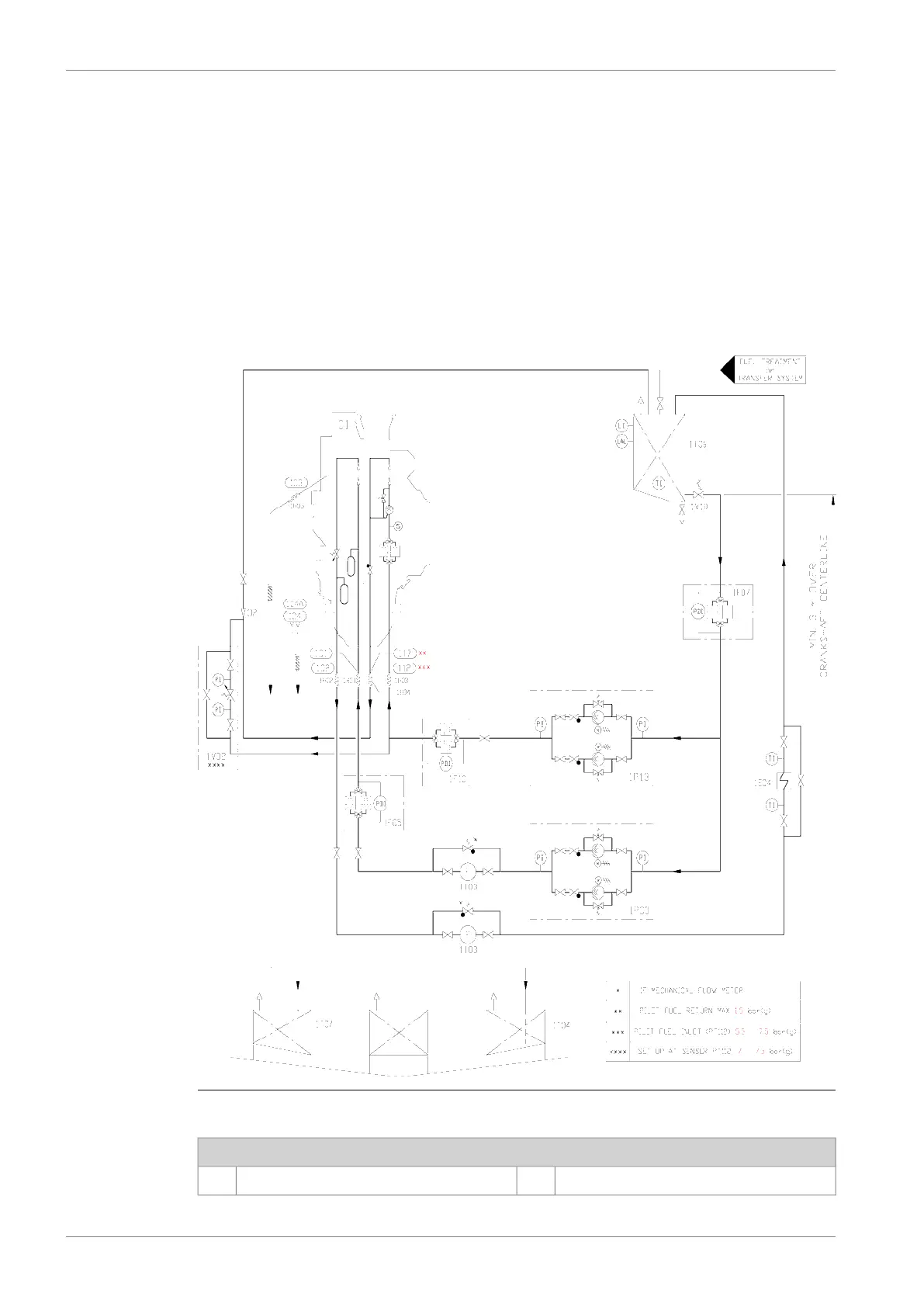
6.4.2.5 Fuel feed system - MDF installations
Fig 6-14 Example of fuel feed system, MDF (DAAF366919 C)
System components:
Circulation pump (MDF)1P03Diesel engine Wärtsilä L46DF01
6-32 DBAD209883
Wärtsilä 46DF Product Guide6. Fuel System

Table of Contents

Related product manuals