EasyManua.ls Logo

Yamaha F80 - Page 299

Yamaha F80
497 pages
Print Icon
To Next Page IconTo Next Page
To Next Page IconTo Next Page
To Previous Page IconTo Previous Page
To Previous Page IconTo Previous Page
Loading...
6-19
Outboard Rigging Guide - 2001 30HP Tiller Handle Kit
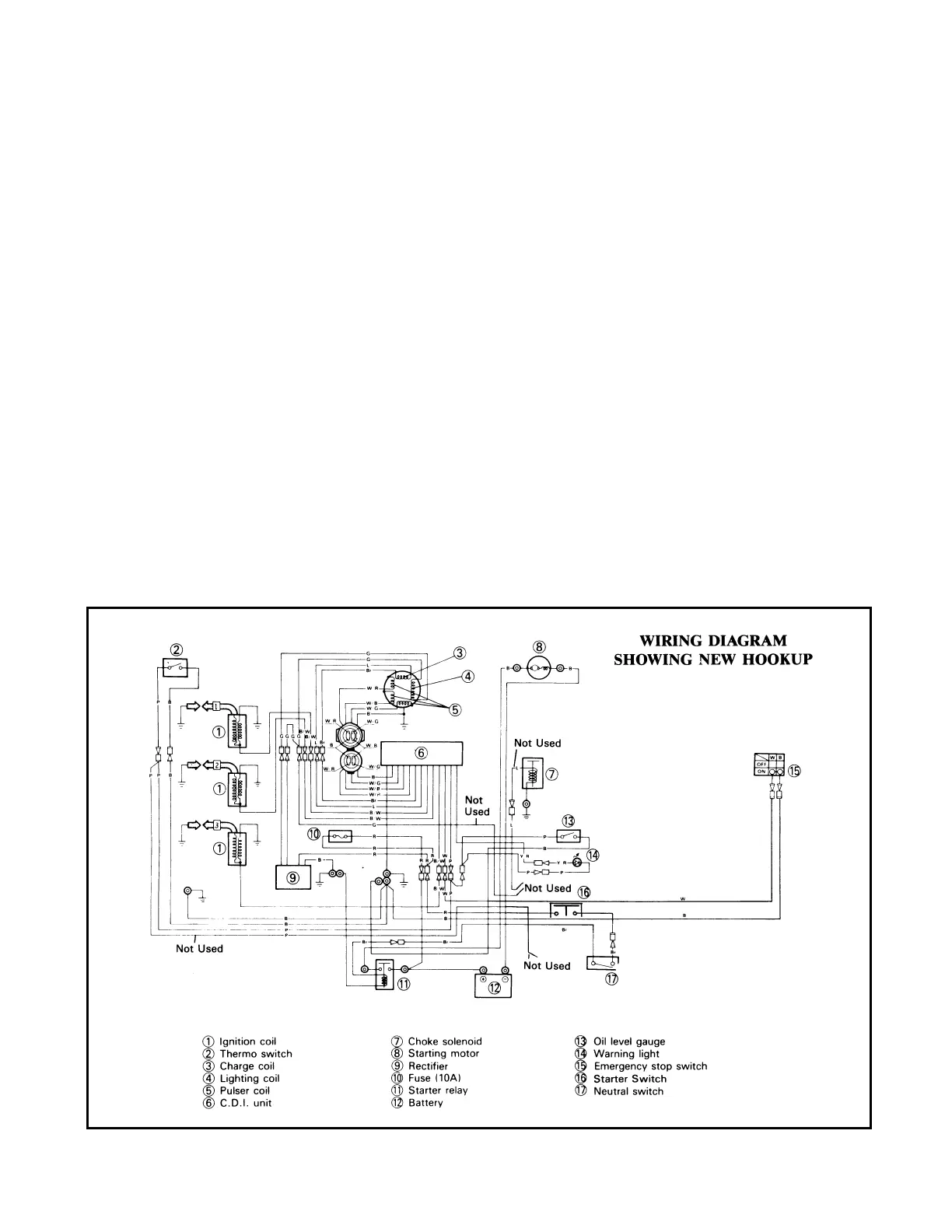
23. Hook up the starter switch by connecting its
brown lead to one of the brown leads from
the neutral safety switch (connect them where
they meet at the terminal cover area).
Connect its red lead to connector at the junc-
tion of the red leads from the rectifier and
fuse holder.* Connect the other brown lead
from the neutral safety switch to the lead
from the starter solenoid.* When these leads
are properly installed, the engine should start
only when the shift lever is in neutral.
*The same color wire lead in the harness you
removed in step 21 was disconnected at this point.
24. Connect the white lead from the emergency
stop switch to the white wire from the CDI
box.* Make sure all ground (black) wires are
beneath the appropriate bolt under the termi-
nal cover,* and tighten the bolt.
*The same color wire lead in the harness you
removed in step 21 was disconnected at this point.
NOTE: The blue choke solenoid lead is no longer
used and should be secured away from all moving
parts. In addition, a replacement for the green
wire from the lighting coil to the plug in the orig-
inal harness is not necessary. One of the pink
wires (from the thermoswitch to harness plug) is
eliminated, as well (See schematic below).
25. Verify that all wires are properly connected,
and reinstall the terminal cover.
26. Reinstall the control cable, flywheel covers,
and the upper cowling.
27. Test all functions of the tiller handle (under
operating conditions) to make sure they oper-
ate properly.
28. Collect and return all removed and unused
parts to the customer for possible later use.

Table of Contents

Other manuals for Yamaha F80

Related product manuals