EasyManua.ls Logo

YASKAWA P1000 Series

YASKAWA P1000 Series
94 pages
To Next Page IconTo Next Page
To Next Page IconTo Next Page
To Previous Page IconTo Previous Page
To Previous Page IconTo Previous Page
Loading...
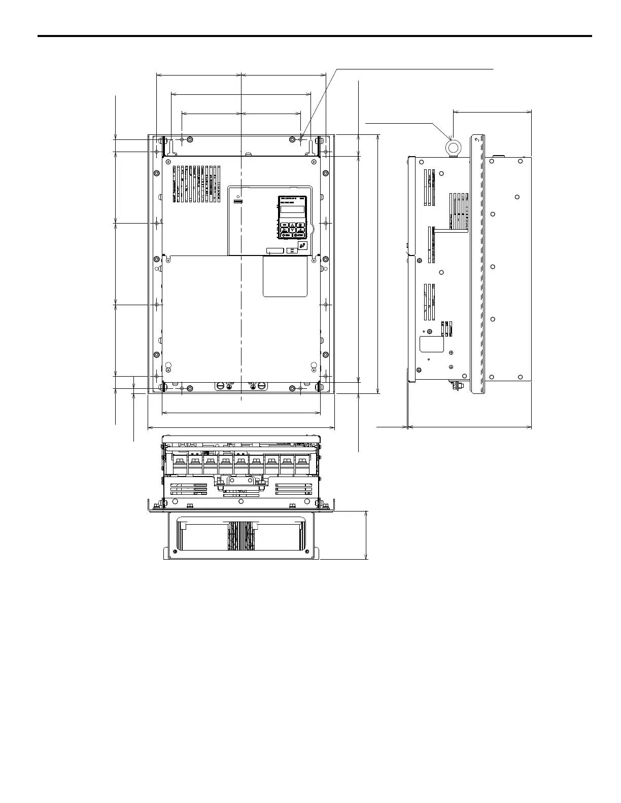
unit: mm (inch)
12-Mounting Holes for M6 Screw
Eye Bolts
with M8 Screw
163.3 (6.43)
3
(0.12)
292 (11.50)
258 (10.16)
150 (5.91) 170 (6.69) 150 (5.91)
330.2 (13.00)
390 (15.35)
473.2 (18.63)
542 (21.34)
101 (3.98)
25.5 (1.00)
25.5 (1.00)
45.1 (1.78)
10.5 (0.41)
23.7 (0.93)
124 (4.88) 124 (4.88)
176.75 (6.96) 176.75 (6.96)
Figure 23 Flange Type Model 4T0072U Mounting Dimensions
8 Specifications
YASKAWA TOEP YAIP1U 04A YASKAWA AC Drive – P1000 6-Phase/12-Pulse Input Installation Manual
47

Related product manuals