EasyManua.ls Logo

YASKAWA P1000 Series

YASKAWA P1000 Series
94 pages
To Next Page IconTo Next Page
To Next Page IconTo Next Page
To Previous Page IconTo Previous Page
To Previous Page IconTo Previous Page
Loading...
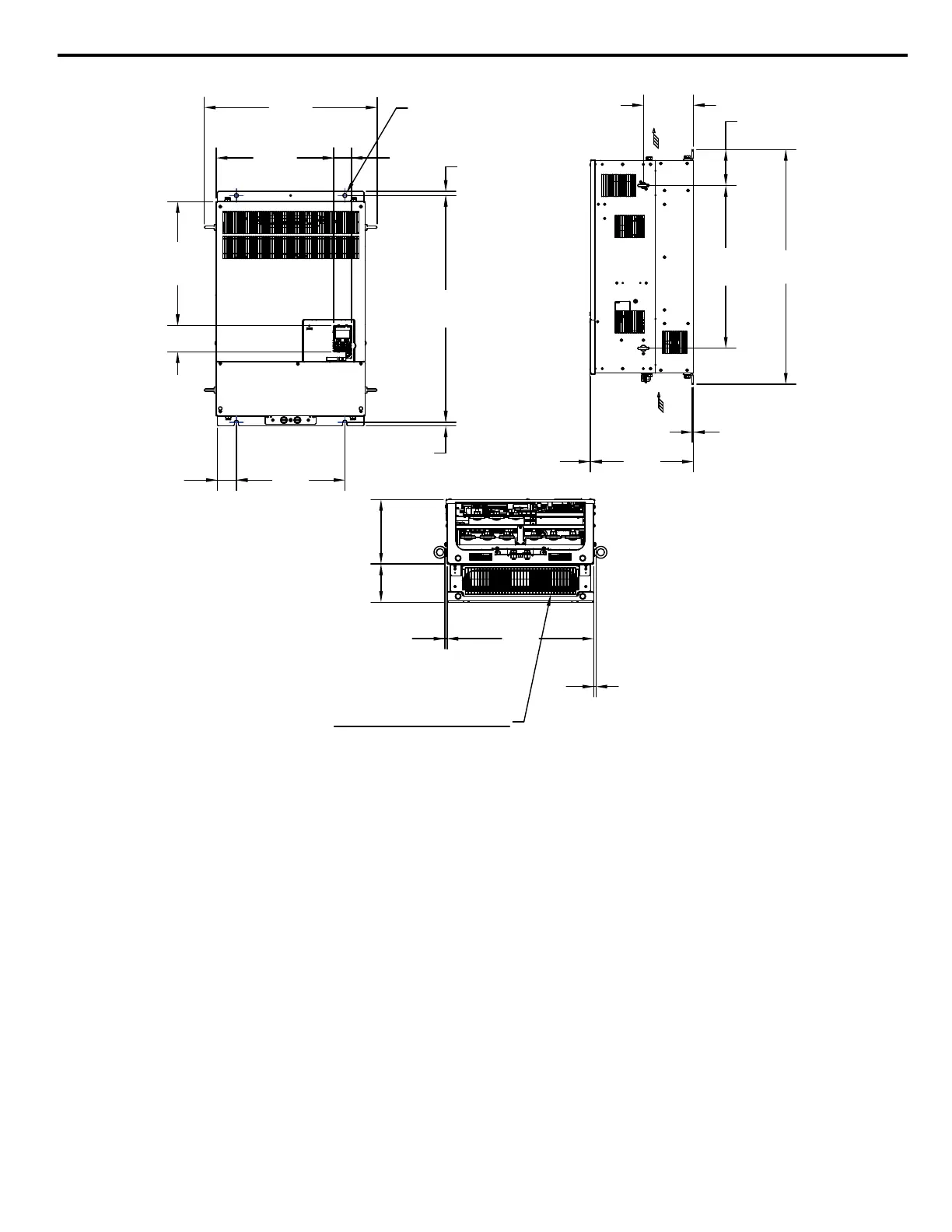
AIR
AIR
HORIZONTAL MTG DIM
VERTICAL MTG DIM
13.78
[350]
0.11
[3]
0.13
[3.2]
6.7
[170.1]
31.5
[800]
FRONT VIEW
(4)-MOUNTING HOLES
FOR 1/2"[M12] SCREWS
4.82
[122.5]
15.78
[400.9]
2.36
[60]
16.63
[422.3]
3.54
[90]
5.12
[130]
8.66
[220]
19.69
[500]
0.3
[8]
0.3
[8]
23.2
[589.2]
0.55
[14]
30.43
[773]
0.51
[13]
2.56
[65]
14.57
[370]
21.85
[555]
OPTIONAL CAPACITOR COVER
WHEN USING AN EXTERNAL MOUNT HEATSINK, UL
COMPLIANCE REQUIRES COVERING EXPOSED
CAPACITORS IN THE MAIN CIRCUIT TO PREVENT INJURY.
Unit: in [mm]
Figure 35 Non-Flange Type Models 4T0250A to 4T0362A Mounting Dimensions
8 Specifications
YASKAWA TOEP YAIP1U 04A YASKAWA AC Drive – P1000 6-Phase/12-Pulse Input Installation Manual
59

Related product manuals