EasyManua.ls Logo

ABB REF615 F - Page 583

ABB REF615 F
896 pages
To Next Page IconTo Next Page
To Next Page IconTo Next Page
To Previous Page IconTo Previous Page
To Previous Page IconTo Previous Page
Loading...
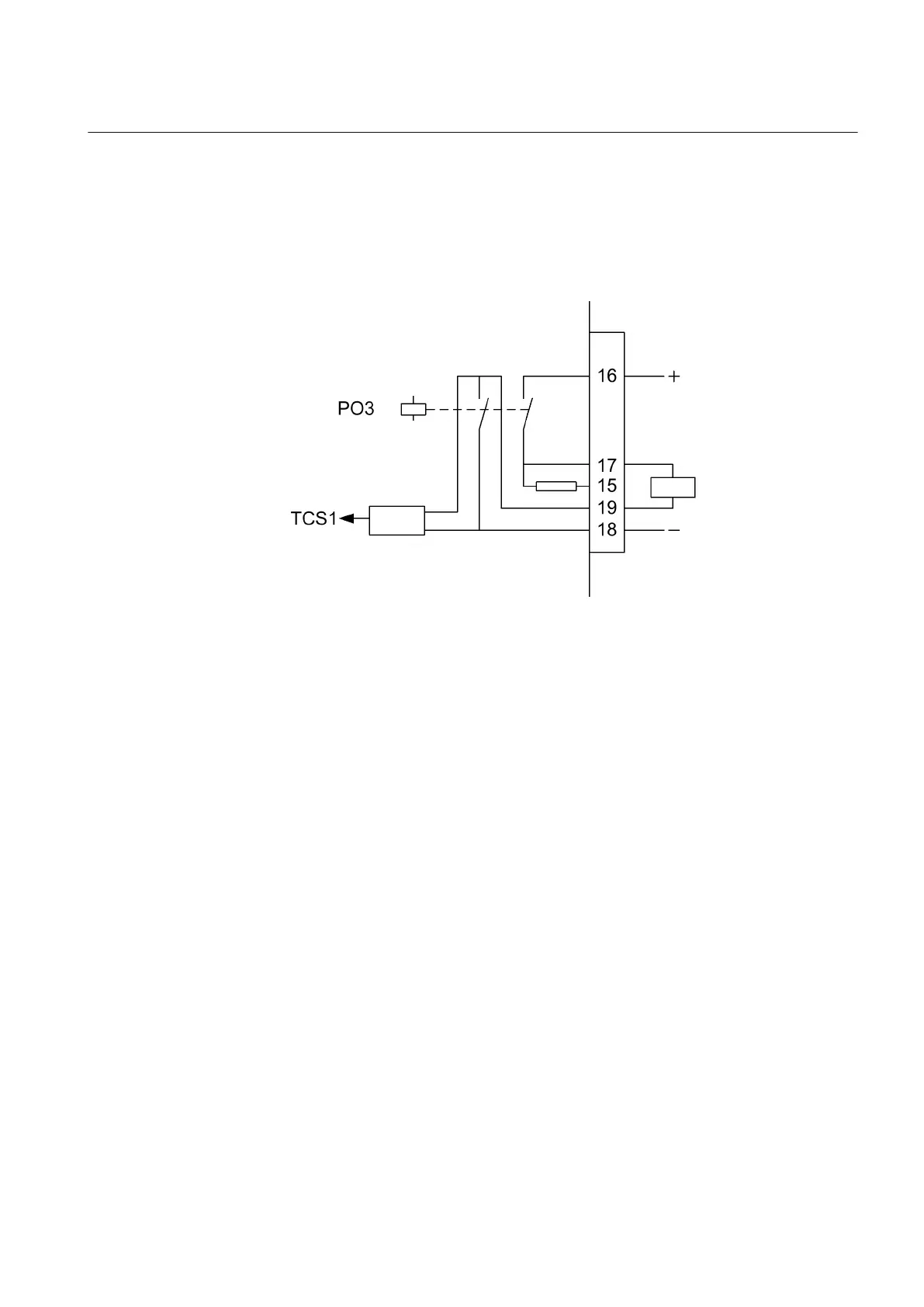
Using power output contacts without trip circuit supervision
If TCS is not used but the contact information of corresponding power outputs are
required, the internal resistor can be by-passed. The output can then be utilized as a
normal power output. When bypassing the internal resistor, the wiring between the
terminals of the corresponding output X100:16-15(PO3) or X100:21-20(PO4) can
be disconnected. The internal resistor is required if the complete TCS circuit is used.
GUID-0560DE53-903C-4D81-BAFD-175B9251872D V1 EN
Figure 309: Connection of a power output in a case when TCS is not used and
the internal resistor is disconnected
Incorrect connections and use of trip circuit supervision
Although the TCS circuit consists of two separate contacts, it must be noted that
those are designed to be used as series connected to guarantee the breaking
capacity given in the technical manual of the IED. In addition to the weak breaking
capacity, the internal resistor is not dimensioned to withstand current without a
TCS circuit. As a result, this kind of incorrect connection causes immediate
burning of the internal resistor when the circuit breaker is in the close position and
the voltage is applied to the trip circuit. The following picture shows incorrect
usage of a TCS circuit when only one of the contacts is used.
1YHT530004D05 D Section 6
Supervision functions
615 series 577
Technical Manual

Table of Contents

Related product manuals