EasyManua.ls Logo

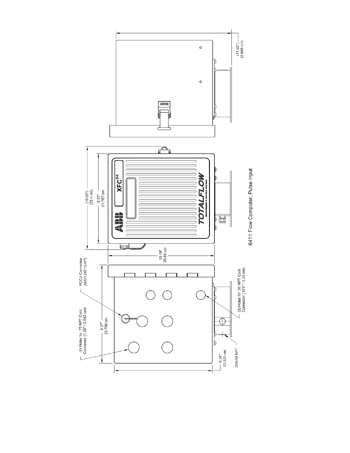
ABB XFCG4 6414 - Figure 2 XFC Model 6411, Pulse Meter

ABB XFCG4 6414
161 pages
Print Icon
To Next Page IconTo Next Page
To Next Page IconTo Next Page
To Previous Page IconTo Previous Page
To Previous Page IconTo Previous Page
Loading...
20 XFC G4 2103335 Rev AB
Figure 2 XFC
G4
Model 6411, Pulse Meter

Table of Contents