EasyManua.ls Logo

ABB XFCG4 6414 - Figure 42 Model XFC 6414 Wall Mounted; G4 6414 Wall Mounted

ABB XFCG4 6414
161 pages
Print Icon
To Next Page IconTo Next Page
To Next Page IconTo Next Page
To Previous Page IconTo Previous Page
To Previous Page IconTo Previous Page
Loading...
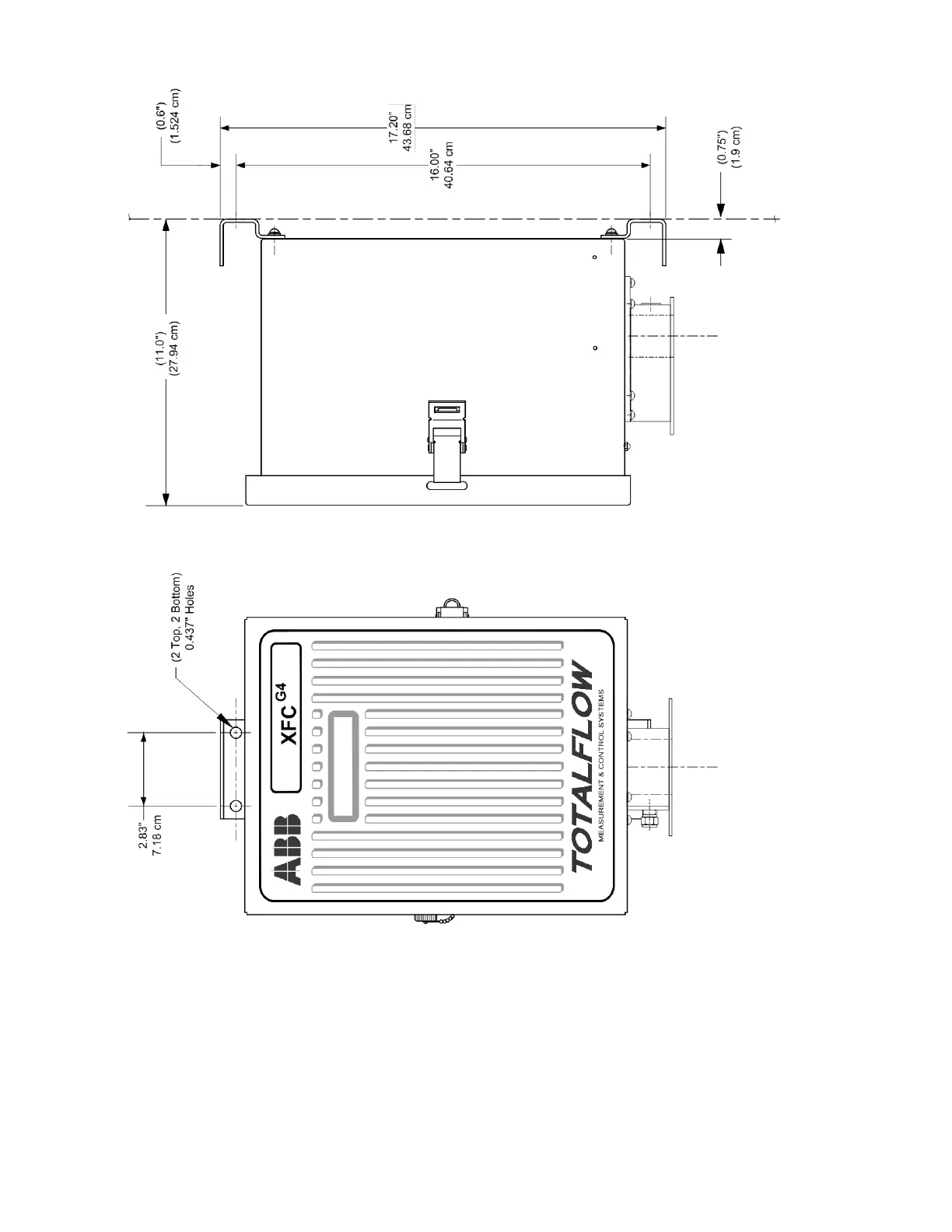
60 XFC G4 2103335 Rev AB
Figure 42 Model XFC
G4
6414 Wall Mounted

Table of Contents

Related product manuals