EasyManua.ls Logo

ADE Accenta G3 - How to Unset the System; Enter Premises and Listen; Key in User Code

ADE Accenta G3
36 pages
Print Icon
To Next Page IconTo Next Page
To Next Page IconTo Next Page
To Previous Page IconTo Previous Page
To Previous Page IconTo Previous Page
Loading...
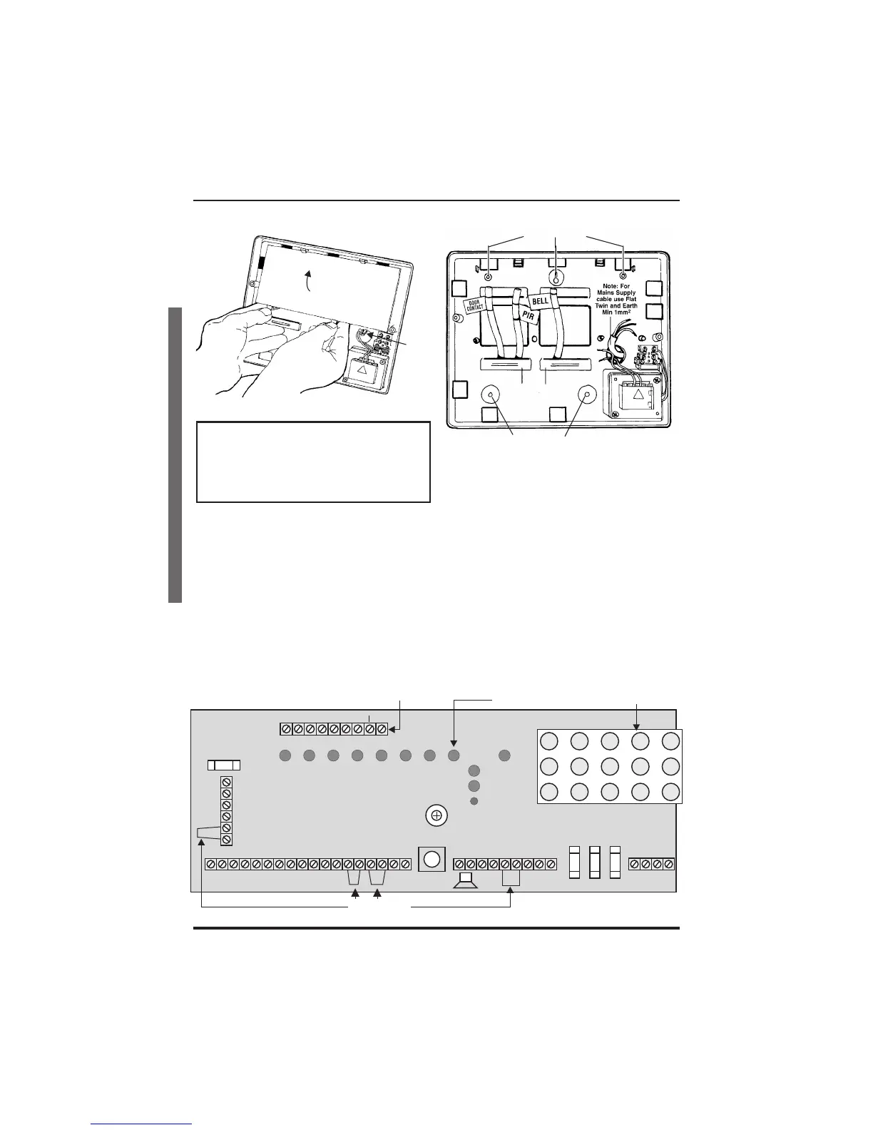
Note: When replacing the PCB align it
on the round support pillars to the
bottom and allow it to click down past
the clips at the top of the case. Refit the
transformer wires into the terminal.
b. Fit the panel to the wall with suitable
fixings. Ensure the wall surface is flat to
prevent base distortion. There are
cable entry holes provided in the rear
of the base and around the outside
edges through the thinned out plastic
sections which may be cut away as
required.
c. The hole provided adjacent to the
mains transformer is a dedicated mains
cable entry point.
Board
There are four fuses mounted on the circuit
board, all are 20mm quick blow.
F1 1.6A - to protect the +ve line of 12V battery
F2 1A - to protect the RKP 13V supply
F3 1A - to protect the Speaker 13V supply
F5 1A - to protect the Bell and Strobe supply
As supplied, wire links are fitted across the PA
and Tamper terminals to represent a closed
circuit.
4 4PI175 issue 1_6/01
Engineering information Accenta/Optima G3 Intruder system
Fixing
J2
PA
+
TAMP
-
+13V 0V
-
STROBE
J6
+-
AC
TAMP
+
TA
SCB
DB
BELL
+
-
SET
1A 1A 1.6A
BELL/STROBE
13V / SPEAKER
BATTERY
BATT
J4
F1F3F5
J5
0V
TAMP
+13V
COMMS
SOUND
VR1
VOLUME
2
1
4
3
6
5
8
7
1A
RKP FUSE
F2
ABORT
J3
+13V
L/FAIL
0V
FIRE PA INT
SET CONF
Factory fitted links
0 1 2 3
5 6 7 8
CHIME OMIT RESET
4
9
SETPROG
Communicator is not fitted
to Optima compact G3 panel
Keypad and LEDs (except Power LED) are not
fitted to Accenta G3 and Accenta mini G3 panels
D1 D2 D3 D4 D5 D6 D7 D8
D9
D10
D22
D18
Mounting holes
Mounting holes
Cable entry
holes

Table of Contents

Other manuals for ADE Accenta G3

Related product manuals