EasyManua.ls Logo

Advantech AIMB-252 - Motherboard Layout; Figure 1.1 Motherboard Layout

Advantech AIMB-252
94 pages
Print Icon
To Next Page IconTo Next Page
To Next Page IconTo Next Page
To Previous Page IconTo Previous Page
To Previous Page IconTo Previous Page
Loading...
AIMB-252 User Manual 4
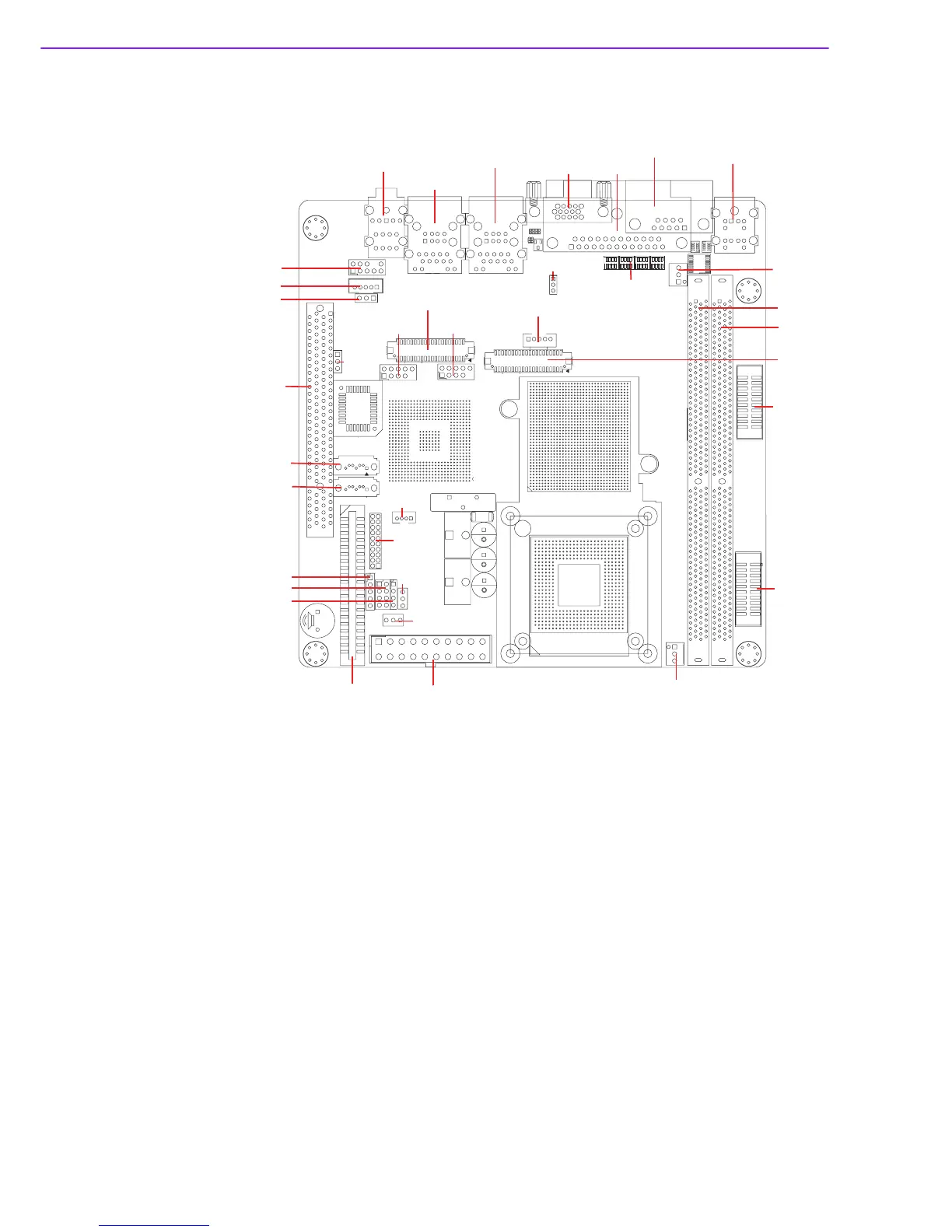
1.3 Motherboard Layout
Figure 1.1 Motherboard Layout
Audio1
LAN2_USB34
LAN1_USB12
VGA1
LPT1
COM1
KBMS1
SYSFAN1
DIMMA1
LVDS1
COM45
COM23
CPUFAN1
EATXPWR1
IDE1
SATA2
SATA1
PCI1
FPAUD1
INV1
USB56USB78
GPIO1
JSETCOM1
DIMMB1
JFP3
JFP2
JFP1
SYSFAN2
JPSON1
SMBUS1
BIOS1
JLV1
LVDS2
CMOS1
INV2
JLV2

Table of Contents

Related product manuals