EasyManua.ls Logo

AERMEC SWP300 S2 - Descripción de Entradas;Salidas; Esquema Tarjeta Electrónica; 10 Tarjeta Electrónica

AERMEC SWP300 S2
Print Icon
To Next Page IconTo Next Page
To Next Page IconTo Next Page
To Previous Page IconTo Previous Page
To Previous Page IconTo Previous Page
Loading...
138
SWP_5287500_00
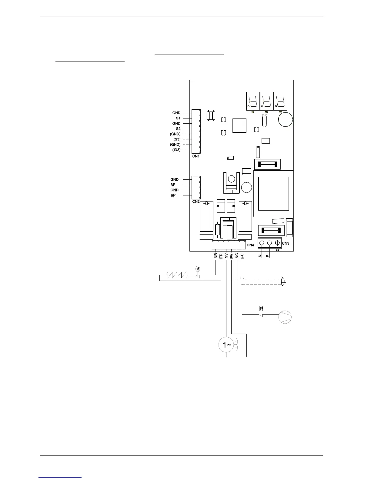
10. TARJETA ELECTRÓNICA
10.1. DESCRIPCIÓN DE ENTRADAS/
SALIDAS TARJETA
ELECTRÓNICA
ENTRADAS DIGITALES:
HP= alta presión
BP= baja presión
(ID3)= sólo preparación entrada
ENTRADAS ANALÓGICAS:
S1=
sonda de agua
S2=
sonda de aire
(S3= sólo preparación entrada)
SALIDAS RELE’:
NR,FR= habilitación encendido
resistencia
NV,FC= habilitación encendido
ventilador
NC,FC= habilitación encendido
compresor (y, en paralelo,
eventual servocontrol para
distribuidor D160S)
10.2. ESQUEMA TARJETA
ELECTRÓNICA
SONDA DE AGUA
SONDA DE AIRE
SONDA DE AIRE
OPCIONAL
RESISTENCIA
VENTILADOR
COMPRESOR
(EVENTUAL SERVOCONTROL PARA D160S)
ALIMENTACIÓN

Table of Contents

Related product manuals