EasyManua.ls Logo

AIRSYS 13E1C3 - Physical Installation Steps

Default Icon
81 pages
Print Icon
To Next Page IconTo Next Page
To Next Page IconTo Next Page
To Previous Page IconTo Previous Page
To Previous Page IconTo Previous Page
Loading...
Chapter 2: Installation
Physical Installation
Page 12
Physical Installation
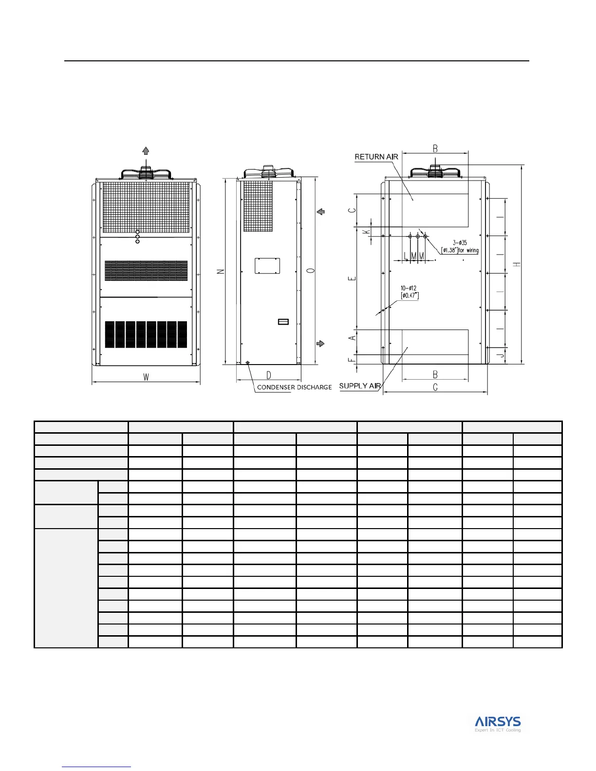
To assist in the installation process, the following figure and table provide the schematic dimensions of the units
using a dimensional tolerance of ± 1/16” (2 mm).
Table 7: External Dimensions of Basic Unit for Architectural and Installation Requirements (Nominal)
Cabinet Size
C1
C2
C3
C4
Unit of measurement
mm
in
mm
in
mm
in
mm
in
Width (W)
700
27.6
1010
39.8
1160
45.7
1360
53.5
Depth (D)
620
24.4
700
27.6
700
27.6
700
27.6
Height (H)
1930
76.0
2130
83.9
2130
83.9
2130
83.9
Supply
A
200
7.9
268
10.6
268
10.6
268
10.6
B
450
17.7
708
27.9
759
29.9
880
34.7
Return
C
300
11.8
356
14.0
356
14.0
356
14.0
B
450
17.7
708
27.9
759
29.9
880
34.7
E
1000
39.4
1104
43.5
1104
43.5
1104
43.5
F
133
5.2
101
4.0
101
4.0
101
4.0
G
660
26.0
970
38.2
1120
44.1
1320
52.0
I
350
13.8
400
15.8
400
15.8
400
15.8
J
226
8.9
178
7.0
178
7.0
178
7.0
K
101
4.0
101
4.0
101
4.0
101
4.0
L
87
3.4
87
3.4
112
4.4
112
4.4
M
80
3.2
80
3.2
80
3.2
80
3.2
N
1800
70.9
1999
78.7
1999
78.7
1999
78.7
O
1815
71.5
2017
79.4
2017
79.4
2017
79.4

Table of Contents

Related product manuals