EasyManua.ls Logo

AIRSYS 13E1C3 - Make Openings and Holes

Default Icon
81 pages
Print Icon
To Next Page IconTo Next Page
To Next Page IconTo Next Page
To Previous Page IconTo Previous Page
To Previous Page IconTo Previous Page
Loading...
Chapter 2: Installation
Physical Installation
Page 14
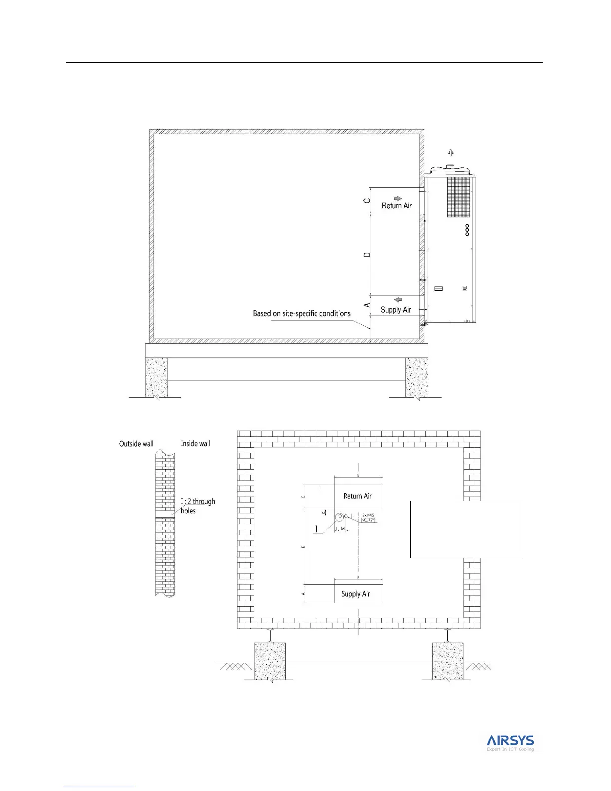
Make Openings and Holes
Make openings for supply and return air and cable and bolt holes in the installation wall as shown in Figure 3 and
Figure 4; refer to Table 7 on page 12 for dimensions.
Figure 3: Left Side View
Figure 4: Openings and Holes in the Wall
Note: You may use
template printed on
the shipping carton to
create wall cuts.

Table of Contents

Related product manuals