EasyManua.ls Logo

Allen-Bradley Kinetix 7000 - Page 32

Allen-Bradley Kinetix 7000
190 pages
Print Icon
To Next Page IconTo Next Page
To Next Page IconTo Next Page
To Previous Page IconTo Previous Page
To Previous Page IconTo Previous Page
Loading...
32 Rockwell Automation Publication 2099-UM001D-EN-P - December 2012
Chapter 2 Install the Kinetix 7000 Drive System
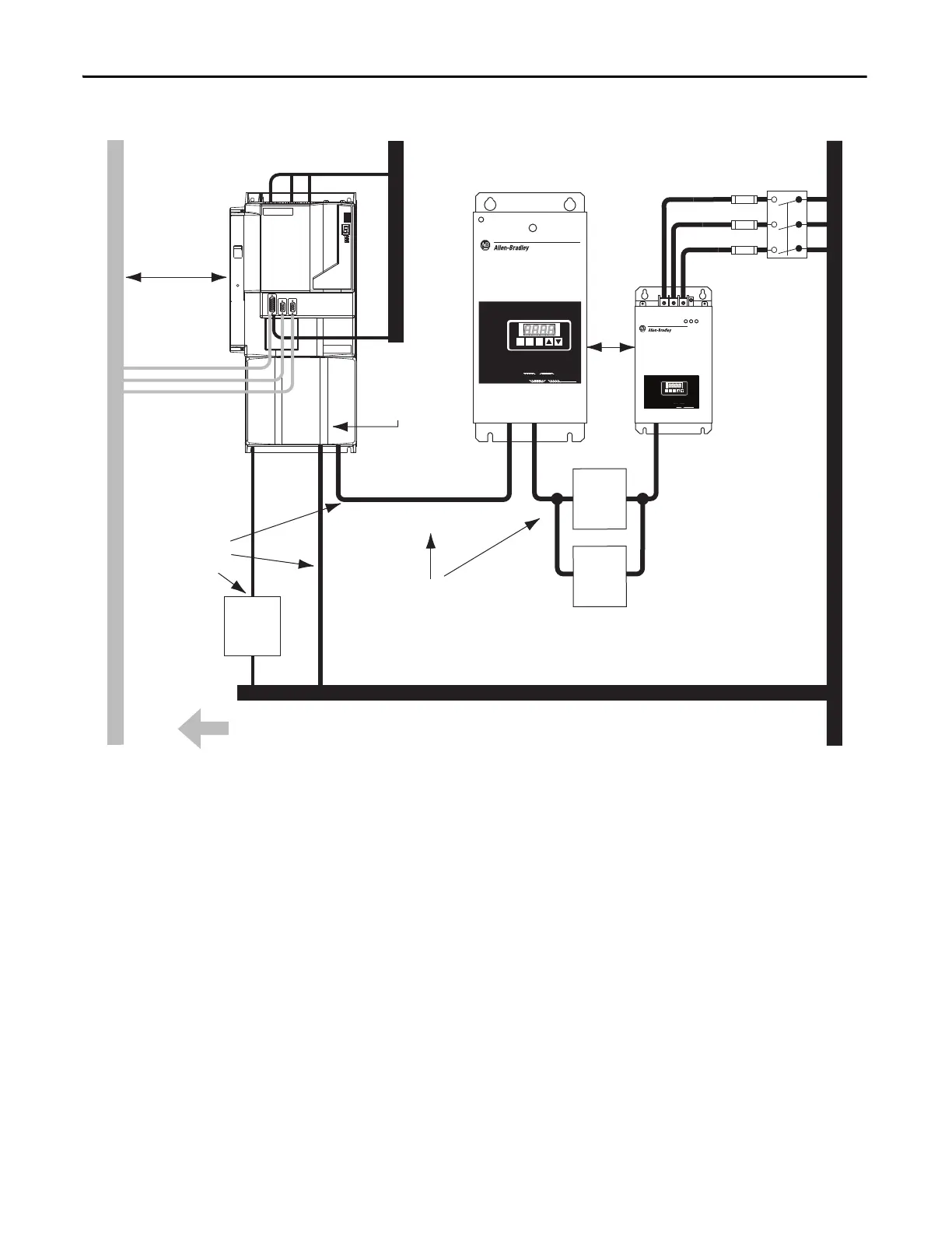
Figure 11 - Establishing Noise Zones (Regenerative Power Supply with Line Filter Unit)
C1
C1
D3
D2
R E
G E NE R AT IV E P
O W E
R S U
P P LY
REGENERATIVE POWER SUPPLY
8720
8720
MC
MC
RST
PRG
ENT
READY
READY
FAULT
FAULT
PROGRAM
PROGRAM
kW
kW
V
A
VD
VD
D2
D1
VD
REGE
NE
RATIV
E
POWER SUPP
LY
8720
8720
MC
MC
RST
PRG
ENT
READY
READY
FAUL
FAULT
PROGRAM
PROGRAM
kW
kW
V
A
VD
VD
Route Encoder/Analog/Registration
Shielded Cable
Shielded Cable or
Conduit
Clean Wireway (Cx)
No sensitive
equipment within
150 mm (6.0 in.)
Dirty Wireway (Dx)
Shield Clamps
(beneath cover)
Motor Power
Shielded Cable
Line
Reactor
Registration I/O
24V DC
Kinetix 7000 Drive
24V DC I/O
Shielded Cable
GPIO, GPR, and SO Cables Dirty Wireway (Dx)
24V DC
Power
Supply
Keep very dirty connections as short as
possible and segregated (not in wireway)
Line
Fuses
Circuit
Breaker
8720MC-RPS190BM-HV2
Regenerative Power Supply
Encoder Feedback
DC Bus 2 m (78.7 in.)
Line
Reactor
8720MC -LR10-100B
Line Reactors
8720MC-EF190-VB
EMC Line Filter
1.5 m
(5 ft)

Table of Contents

Other manuals for Allen-Bradley Kinetix 7000

Related product manuals