EasyManua.ls Logo

Ametek 931S - Page 63

Ametek 931S
268 pages
Print Icon
To Next Page IconTo Next Page
To Next Page IconTo Next Page
To Previous Page IconTo Previous Page
To Previous Page IconTo Previous Page
Loading...
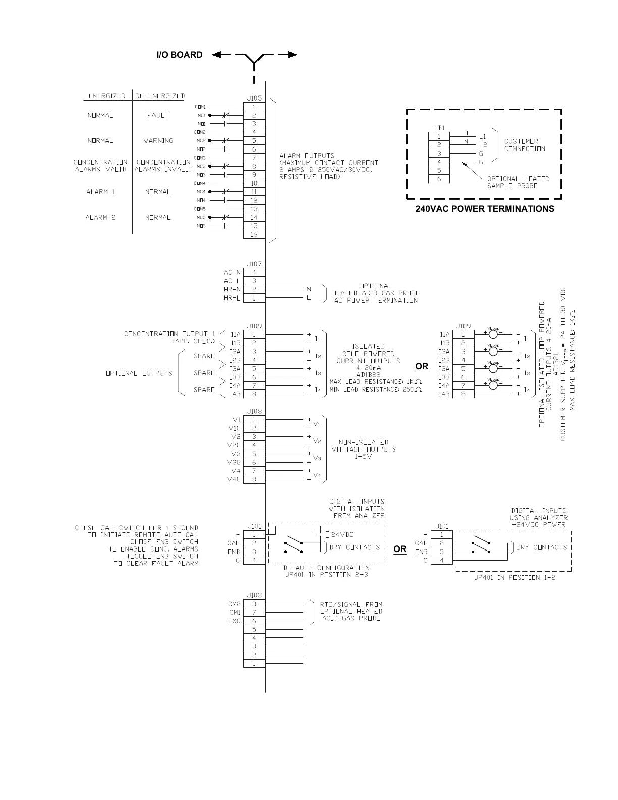
Installation and Start-Up | 3-17
Figure 3-4.
Customer Connections, I/O
board (European).
CUSTOMER CONNECTIONS
I/O BOARD
OR
OR
240VAC POWER TERMINATIONS

Table of Contents

Related product manuals