EasyManua.ls Logo

Areva MiCOM C232 - Page 55

Areva MiCOM C232
198 pages
Print Icon
To Next Page IconTo Next Page
To Next Page IconTo Next Page
To Previous Page IconTo Previous Page
To Previous Page IconTo Previous Page
Loading...
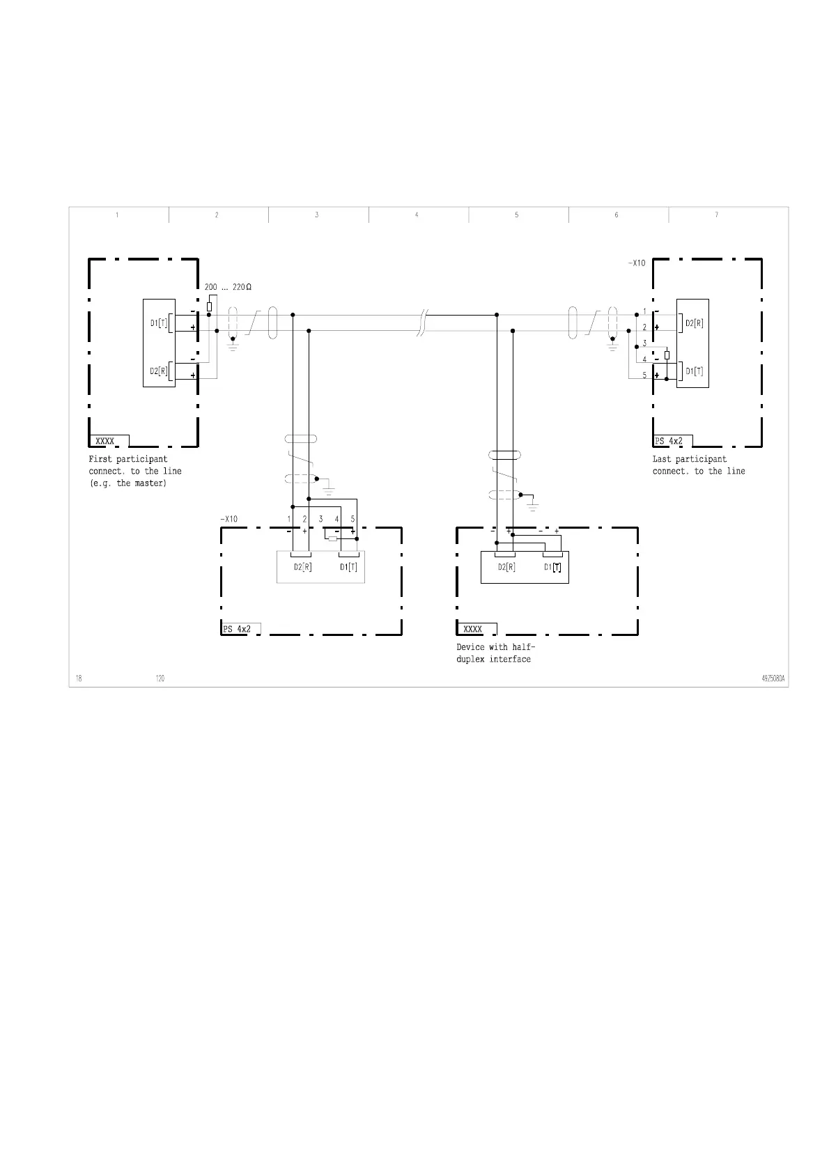
5 Installation and Connection
(continued)
C232-302-401/402/403/404-603 / C232/EN M/A23 5-13
5-8 2-wire connection

Table of Contents