EasyManua.ls Logo

Ariston CLAS - ELECTRIC DIAGRAM FF (from July 2009)

Ariston CLAS
71 pages
Print Icon
To Next Page IconTo Next Page
To Next Page IconTo Next Page
To Previous Page IconTo Previous Page
To Previous Page IconTo Previous Page
Loading...
Manuale didattico CLAS
Pag. 53 di 71
Manuale Didattico ACO
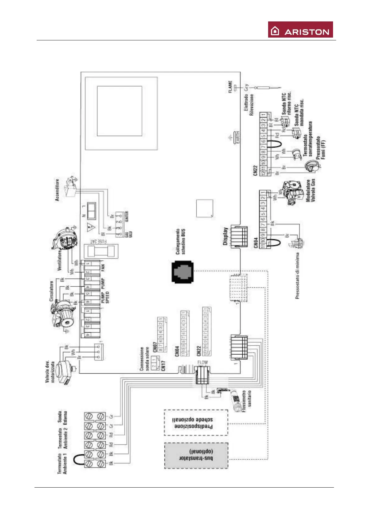
6.1.2 ELECTRIC DIAGRAM FF (from July 2009)

Table of Contents

Related product manuals