EasyManua.ls Logo

Bennett 3000 Series - Page 92

Bennett 3000 Series
100 pages
Print Icon
To Next Page IconTo Next Page
To Next Page IconTo Next Page
To Previous Page IconTo Previous Page
To Previous Page IconTo Previous Page
Loading...
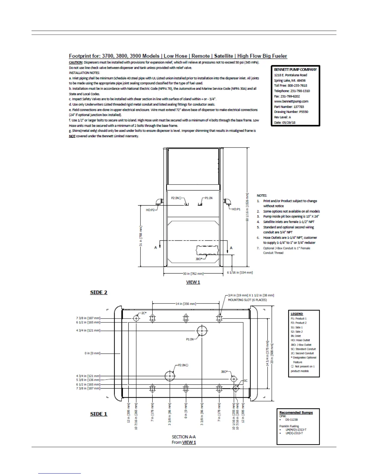
Bennett 3000 Spec 300 Series Instruction Manual Footprints & Wiring Diagrams
88
REMOTE | SATELLITE | LOW HOSE | HIGH FLOW BIG FUELER (P/N 137783)

Table of Contents

Other manuals for Bennett 3000 Series

Related product manuals