EasyManua.ls Logo

Bizerba FK 23 - Reassembling Machine Components

Bizerba FK 23
46 pages
Print Icon
To Next Page IconTo Next Page
To Next Page IconTo Next Page
To Previous Page IconTo Previous Page
To Previous Page IconTo Previous Page
Loading...
Maintenance Operating instructions FK 23
8 - 6 6.066.98.5.10.05 en
8
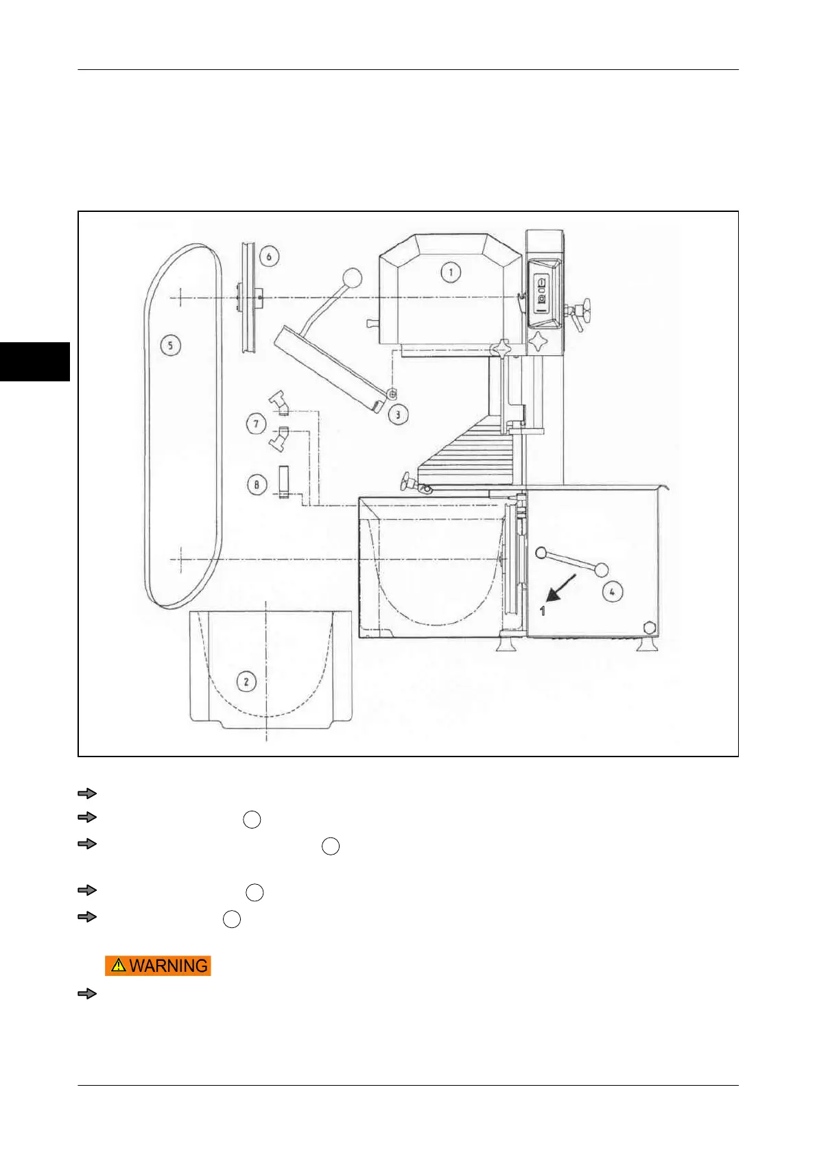
8.5 Preparing the machine for operation
To avoid interferences and injuries, assembly must be carried out carefully and conscien-
tiously.
Attach the components as follows:
Fig. 18: Mount components
Put on cut-resistant gloves.
Push the deflector
8
on the bearing bolt.
Push the saw blade deflector
7
on the bearing bolt. Pay attention to inner and outer
design.
Insert upper wheel
6
from top into bearing.
Hold saw blade
5
with both hands so that the tooth tips are directed towards the
body. Make sure the teeth in the right hand face downwards.
Danger of cutting injury also if saw blade is at standstill.
Move it into the table at the slot of the table, than push it backwards into saw blade
guidance of table and protective bar.