EasyManua.ls Logo

Bosch CRS 845 - Page 16

Bosch CRS 845
Print Icon
To Next Page IconTo Next Page
To Next Page IconTo Next Page
To Previous Page IconTo Previous Page
To Previous Page IconTo Previous Page
Loading...
16
1
3
X4
F3 F2 F1
V21
V19
V23
V22
V26V27V24
458797-13
1
2
3
424V_E
12V_E
P1
4
WH (ws)
BN (bn)
GN (gn)
X4
X5
X6
T2
V1
F6
202 1
19
BK
RD
RD
0V
12V
24V
V2
F7
222 1
21
A10
EPS
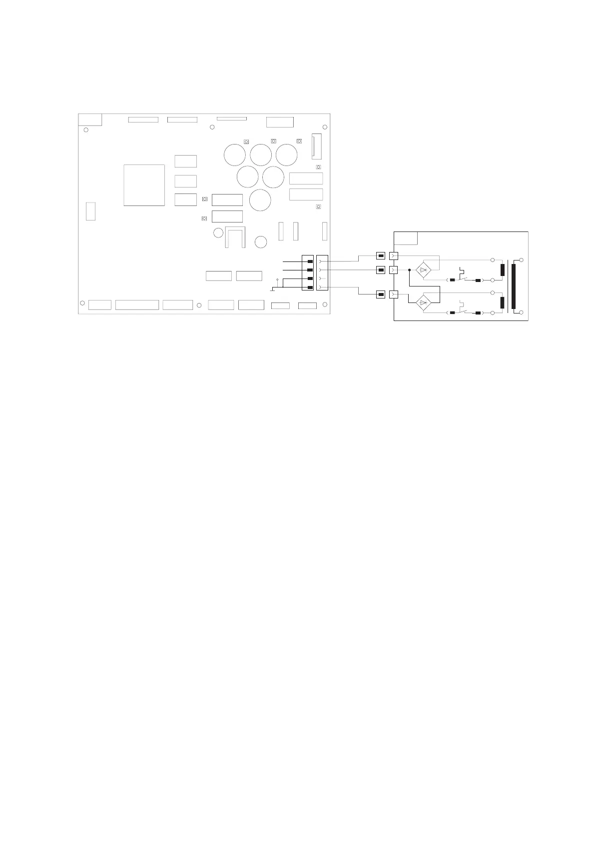
4.1.1 Spannungsversorgung 12 V / 24 V prüfen
Schaltbild:
Das Ansteuergerät wird über die externen Anschluss-
klemmen (X4-X6) am EPS-Schaltschrank mit Spannung
versorgt.
! Die Spannungsversorgung des Ansteuergerätes nie-
mals bei eingeschaltetem Prüfstand ab- bzw. anklem-
men. Dadurch kann die Ansteuerleiterplatte zerstört
werden.
Bevor Sie die Spannungsversorgung ab- bzw. umklem
-
men, schalten Sie den Prüfstand am Hauptschalter
aus.
Vorgehensweise:
1. Anschluss der Spannungsversorgungsleitung (X4) auf
Richtigkeit prüfen.
2. Ausgangspannung (12 V und 24 V) an den externen
Anschlussklemmen (X4-X6) am EPS-Schaltschrank
prüfen.
Liegt keine Spannung an:
Sicherungsautomaten (F6 / F7) aktivieren.
Interne Spannungsversorgung des EPS nach EPS-
Instandsetzungsanleitung 1 689 975 140 prüfen.
3. Schmelzsicherungen F1, F2 und F3 auf der Ansteuer
-
leiterplatte prüfen.
4. Spannungsversorgungsleitung 1 684 465 485 (X4) auf
Durchgang prüfen.
5. Verbindungsleitung 1 684 465 484 (X7) zu den Rail-
DRVs auf Durchgang prüfen.
6. Rail-DRVs elektrisch prüfen (siehe Kapitel 4.3.1).
7. Ansteuerleiterplatte (A10.1) tauschen.

Other manuals for Bosch CRS 845

Related product manuals