EasyManua.ls Logo

Bosch rexroth A4VSO 10 Series - Page 87

Bosch rexroth A4VSO 10 Series
126 pages
To Next Page IconTo Next Page
To Next Page IconTo Next Page
To Previous Page IconTo Previous Page
To Previous Page IconTo Previous Page
Loading...
RE 92050-01-X-B2/2019-08-23, BoschRexrothAG
11 Axial piston variable pump | A4VSO Series 10, 11 and 30
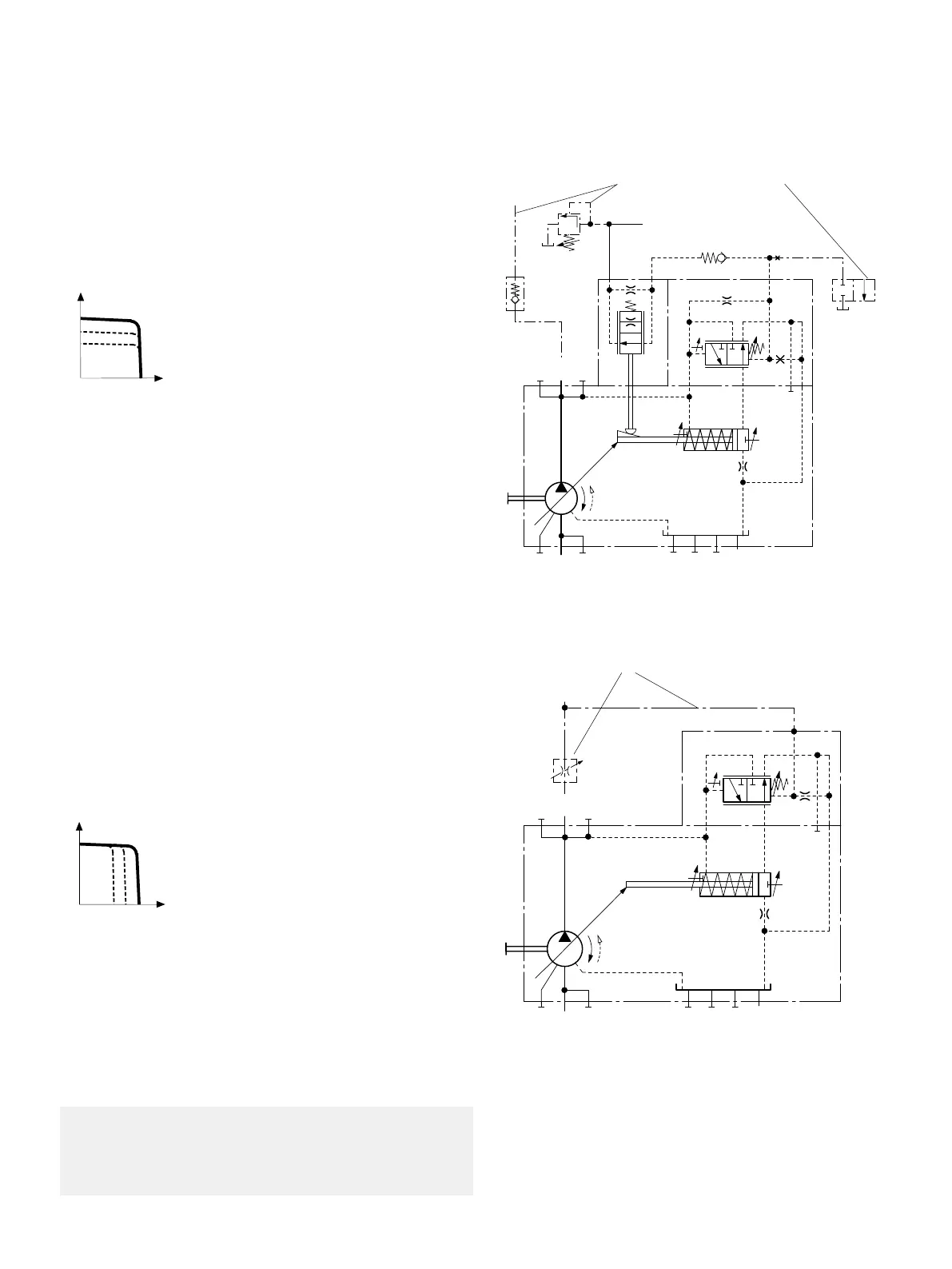
DP–Pressure controller for parallel operation (see92060)
DP–Pressure controller for parallel operation
(see92060)
Circuit diagram
Suitable for pressure control of multiple A4VSO ATEX
axialpiston units in parallel operation.
Optional:
Flow control (DPF)
Characteristic curve
p
q
v min
q
v max
M
st
X
D
B
1
M
B
B
U M
S
S
R(L)
TK
2
K
1
not included in the scope of delivery
FR - Flow controller
(see92060)
Circuit diagram
Maintains a constant flow in a hydraulic system.
Optional:
Remotely controllable pressure control (FRG)
Connection from X
F
to tank plugged
(FR1, FRG1)
Characteristic curve
p
q
v min
q
v max
X
F
B
B
1
M
B
B
U M
S
S
R(L)
TK
2
K
1
Notice
All additional components from 92060 and 92064 must
correspond to the ATEX classification for the
application concerned.
not included in the scope of delivery

Table of Contents

Related product manuals