EasyManua.ls Logo

Ceia THS/GMS21 - Ths;Mbr; Options and Accessories

Ceia THS/GMS21
162 pages
Print Icon
To Next Page IconTo Next Page
To Next Page IconTo Next Page
To Previous Page IconTo Previous Page
To Previous Page IconTo Previous Page
Loading...
2
FI002K0018v1100UK – THS/21 Instruction manual for installation, use and maintenance
DESCRIPTION
42 ORIGINAL INSTRUCTIONS
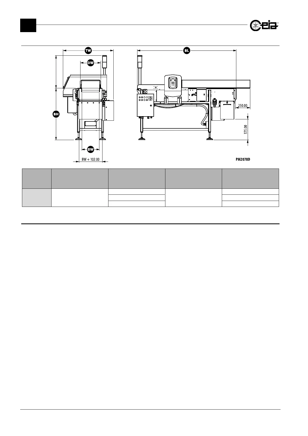
2.6.3.5 THS/MBR
Model
BL BW BH TW
THS/MBR 1700, 2000
300
875 ±75
922
450 1072
600 1222
2.7 Options and Accessories
For the list of options and accessories available for the THS/21, see the Spare parts, Accessories
and Options Manual.

Table of Contents

Related product manuals