EasyManua.ls Logo

Ceia THS/GMS21 - Control Power Box; ALM Card

Ceia THS/GMS21
162 pages
Print Icon
To Next Page IconTo Next Page
To Next Page IconTo Next Page
To Previous Page IconTo Previous Page
To Previous Page IconTo Previous Page
Loading...
FI002K0018v1100UK – THS/21 Instruction manual for installation, use and maintenance
3
INSTALLATION
ORIGINAL INSTRUCTIONS 73
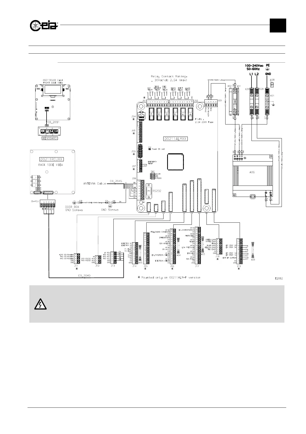
3.6.2 Control Power Box
3.6.2.1 ALM card
THS/xx21E
MAIN OVERCURRENT PROTECTION TO BE PROVIDED ON
SITE
-
MAX 15 A CC CLASS FUSE FOR UL508A APPLICATIONS
-
MAX 16 A FUSE OR 250 V 16 A MAGNETOTHERMIC
SWITCH FOR CE APPLICATIONS
MAIN DISCONNECT SWITCH TO BE PROVIDED ON SITE
PROTECTION DE LIGNE A MAXIMUM DE COURANT A
INSTALLER SUR LE SITE
-
FUSIBLE CLASS CC 15A MAX
POUR APPLICATION UL508A
-
FUSIBLE 16A MAX OU DISJONCTEUR 250V 16A POUR
APPLICATION CE
SECTIONNEUR DE LIGNE A INSTALLER SUR LE SITE

Table of Contents

Related product manuals