EasyManua.ls Logo

Circutor CVM-C5 Series - 3�4�4�- Three-Phase Network Measuring with a 3-Wire Connection, Model; CVM-C5-MC-485

Circutor CVM-C5 Series
54 pages
Print Icon
To Next Page IconTo Next Page
To Next Page IconTo Next Page
To Previous Page IconTo Previous Page
To Previous Page IconTo Previous Page
Loading...
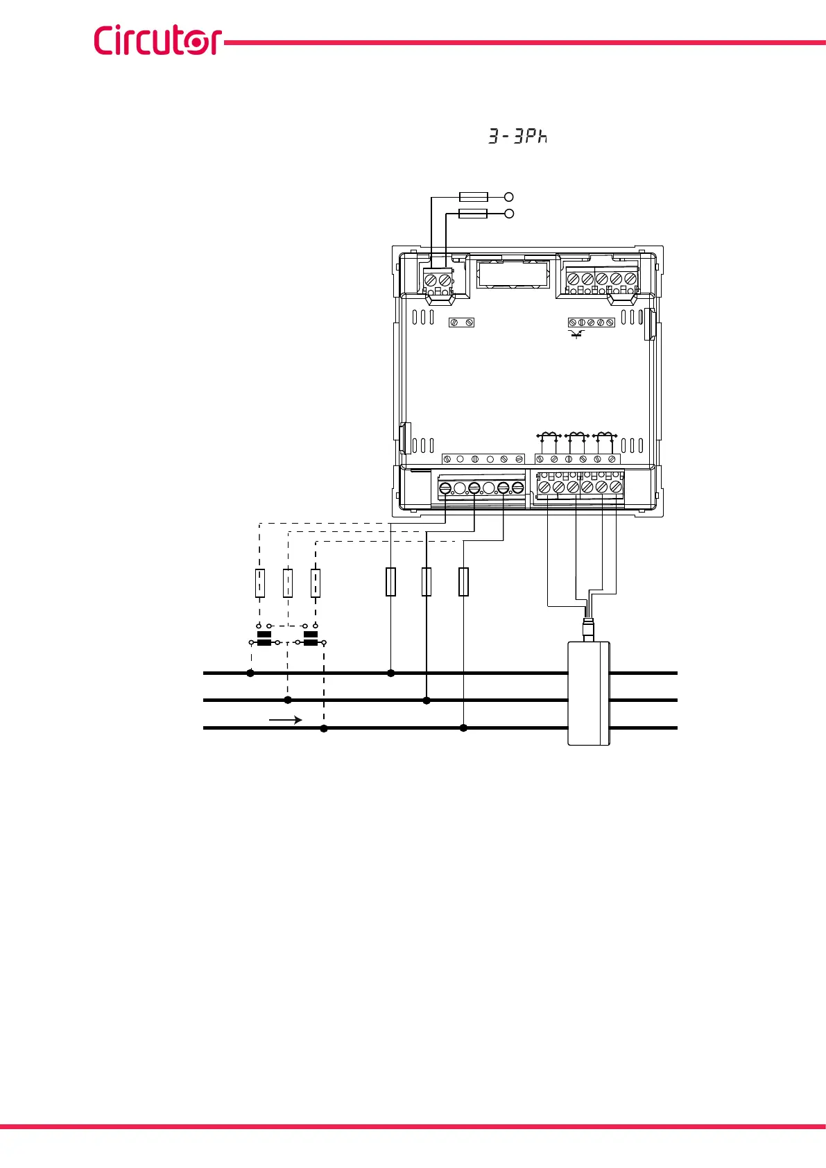
3�4�4�- THREE-PHASE NETWORK MEASURING WITH A 3-WIRE CONNECTION , MODEL
CVM-C5-MC-485�
Measurementsystem:
Power
Supply
VL1 VL2 VL3
L1
L2
L3
a
b
A B
a
b
A B
POWER SUPPLY
S0+ S0-
OUTPUT
S1 S2 S1 S2 S1 S2
L1
P1 P2
L2 L3
300V ~
Ph-NPh-Ph
520V
~
NV
L3L2
V
L1
V
P1 P2 P1 P2
VL1 VL2 VL3
RS485
A
(+)
B
(-)
GND
LOAD
Brown/Green
Grey/Pink
Green/White
Red/Blue
1P22P2
3P2
1P1
2P1
3P1
Figure 6:Three-phase network measuring with a 3-wire connection, modelo CVM-C5-MC-485�
14
CVM-C5-xxx-485
Instruction Manual

Table of Contents

Related product manuals