EasyManua.ls Logo

Circutor CVM-C5 Series - 3�4�5�- Three-Phase Network Measuring with a 3-Wire Connection and Transformers in an Aron Connection

Circutor CVM-C5 Series
54 pages
Print Icon
To Next Page IconTo Next Page
To Next Page IconTo Next Page
To Previous Page IconTo Previous Page
To Previous Page IconTo Previous Page
Loading...
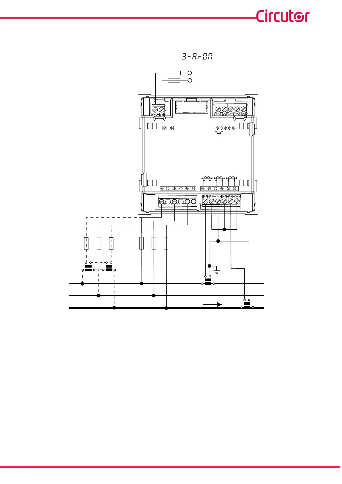
3�4�5�- THREE-PHASE NETWORK MEASURING WITH A 3-WIRE CONNECTION AND
TRANSFORMERS IN AN ARON CONNECTION�
Measurementsystem:
S1 S2
P1
P2
Pow er
Supply
VL1 VL2 VL3
L1
L2
L3
a
b
A B
a
b
A B
POWER SUPPLY
S0+ S0-
OUTPUT
S1 S2 S1 S2 S1 S2
L1
P1 P2
L2 L3
300V ~
Ph-NPh-Ph
520V
~
NV
L3L2
V
L1
V
P1 P2 P1 P2
VL1 VL2 VL3
S1 S2
P1
P2
LOAD
RS485
A
(+)
B
(-)
GND
Figure 7: Three-phase measuring with a 3-wire connection and transformers in an ARON connection�
15
Instruction Manual
CVM-C5-xxx-485

Table of Contents

Related product manuals