EasyManua.ls Logo

Circutor CVM-C5 Series - Connection; 3�4�8�- Phase-To-Neutral Single-Phase Network Measuring with a 2-Wire

Circutor CVM-C5 Series
54 pages
Print Icon
To Next Page IconTo Next Page
To Next Page IconTo Next Page
To Previous Page IconTo Previous Page
To Previous Page IconTo Previous Page
Loading...
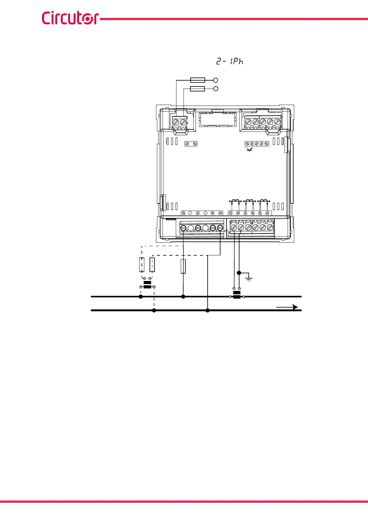
3�4�8�- PHASE-TO-NEUTRAL SINGLE-PHASE NETWORK MEASURING WITH A 2-WIRE
CONNECTION
Measurementsystem:
S1 S2
P1
P2
Power
Supply
VL1
L1
N
POWER SUPPLY
S0+ S0-
OUTPUT
S1 S2 S1 S2 S1 S2
L1
P1 P2
L2 L3
300V ~
Ph-NPh-Ph
520V
~
NV
L3L2
V
L1
V
P1 P2 P1 P2
a
b
A B
VL1
N
LOAD
RS485
A
(+)
B
(-)
GND
Figure 10: Phase-to-neutral single-phase measuring with a 2-wire connection�
18
CVM-C5-xxx-485
Instruction Manual

Table of Contents

Related product manuals