EasyManua.ls Logo

Cisco Nexus 7000 - Page 393

Cisco Nexus 7000
508 pages
Print Icon
To Next Page IconTo Next Page
To Next Page IconTo Next Page
To Previous Page IconTo Previous Page
To Previous Page IconTo Previous Page
Loading...
A-33
Cisco Nexus 7000 Series Hardware Installation and Reference Guide
OL-23069-07
Appendix A Technical Specifications
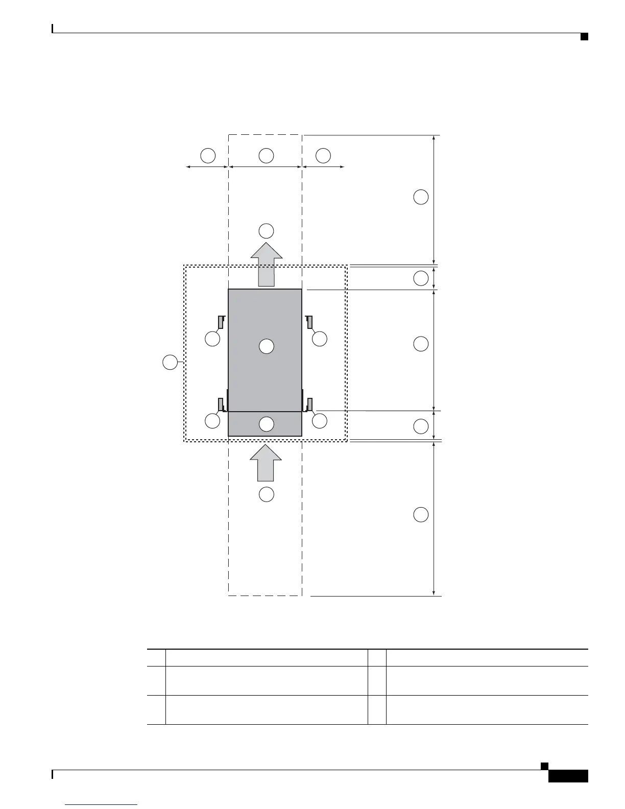
Chassis Clearances
Figure A-20 Clearances Required for the Cisco Nexus 7010 Switch
10
11
12
13
14
7 8
6
4
9
304039
17.3 in
(43.9 cm)
33.1 in
(84.1 cm)
7.5 in
(19.1 cm)
38.0 in
(96.5 cm)
30.0 in
(76.2 cm)
5.0 in
(12.7 cm)
1
2
5
3 3
3 3
1 Cisco Nexus 7010 chassis 8 Chassis width
2 Cable management system 9 No right side clearance required (no airflow
on right side)
3 Vertical rack-mount posts 10 Rear service clearance required to replace fan
trays and fabric modules

Table of Contents

Other manuals for Cisco Nexus 7000

Related product manuals