EasyManua.ls Logo

Cisco Nexus 7000 - Page 72

Cisco Nexus 7000
508 pages
To Next Page IconTo Next Page
To Next Page IconTo Next Page
To Previous Page IconTo Previous Page
To Previous Page IconTo Previous Page
Loading...
3-10
Cisco Nexus 7000 Series Hardware Installation and Reference Guide
OL-23069-07
Chapter 3 Installing a Cisco Nexus 7009 Chassis
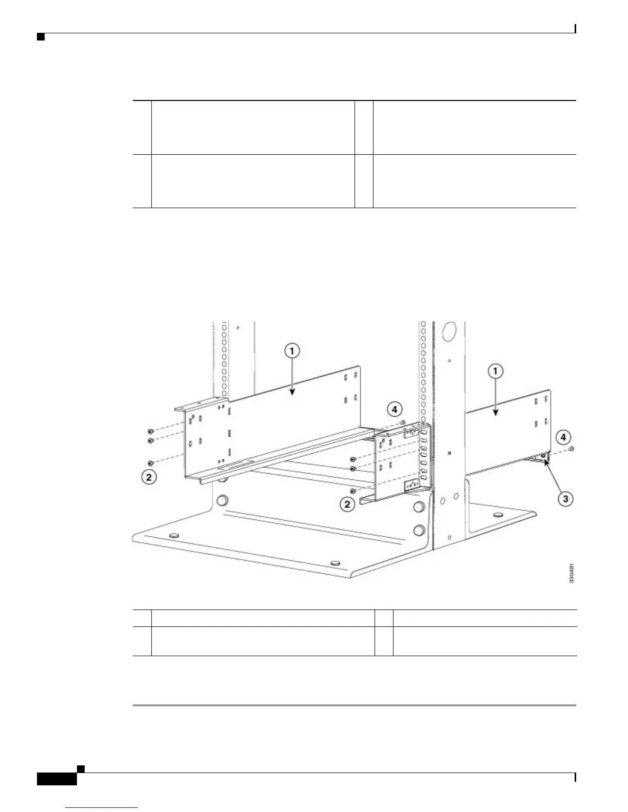
Installing the Bottom-Support Rails on the Rack
Step 2 Use a Phillips screwdriver to screw in two or three (three are recommended if you have three screw holes)
M6 x 19 mm or 12-24 x 3/4 inch Phillips screws on each bracket (using a total of 6 screws for both
brackets) as shown in Figure 3-4.
Figure 3-4 Attaching a Center-Mount Bottom-Support Rail to a Rack
Step 3
Align the crossbar to the lower back of the two bottom-support rails and use two M4 x 8 mm screws to
attach it to each rail (one screw for each rail).
1 For the first and heaviest Cisco Nexus 7009
chassis installed in a rack, position two
center-mount bottom-support rails at the
lowest RU on the rack.
3 Allow at least 26.25 inches (66.7 cm) (15 RU)
for each Cisco Nexus 7009 system.
2 For the second Cisco Nexus 7009 chassis
installed in a rack, position two center-mount
bottom-support rails immediately above the
first installed switch.
1 Left and right center-mount bottom-support rails 3 Crossbar
2 Two sets of 3 M6 x 19 mm Phillips screws or
two sets of 3 12-24 x 3/4 in. Phillips screws
4 M4 x 8 mm Phillips screws (2)

Table of Contents

Other manuals for Cisco Nexus 7000

Related product manuals