EasyManua.ls Logo

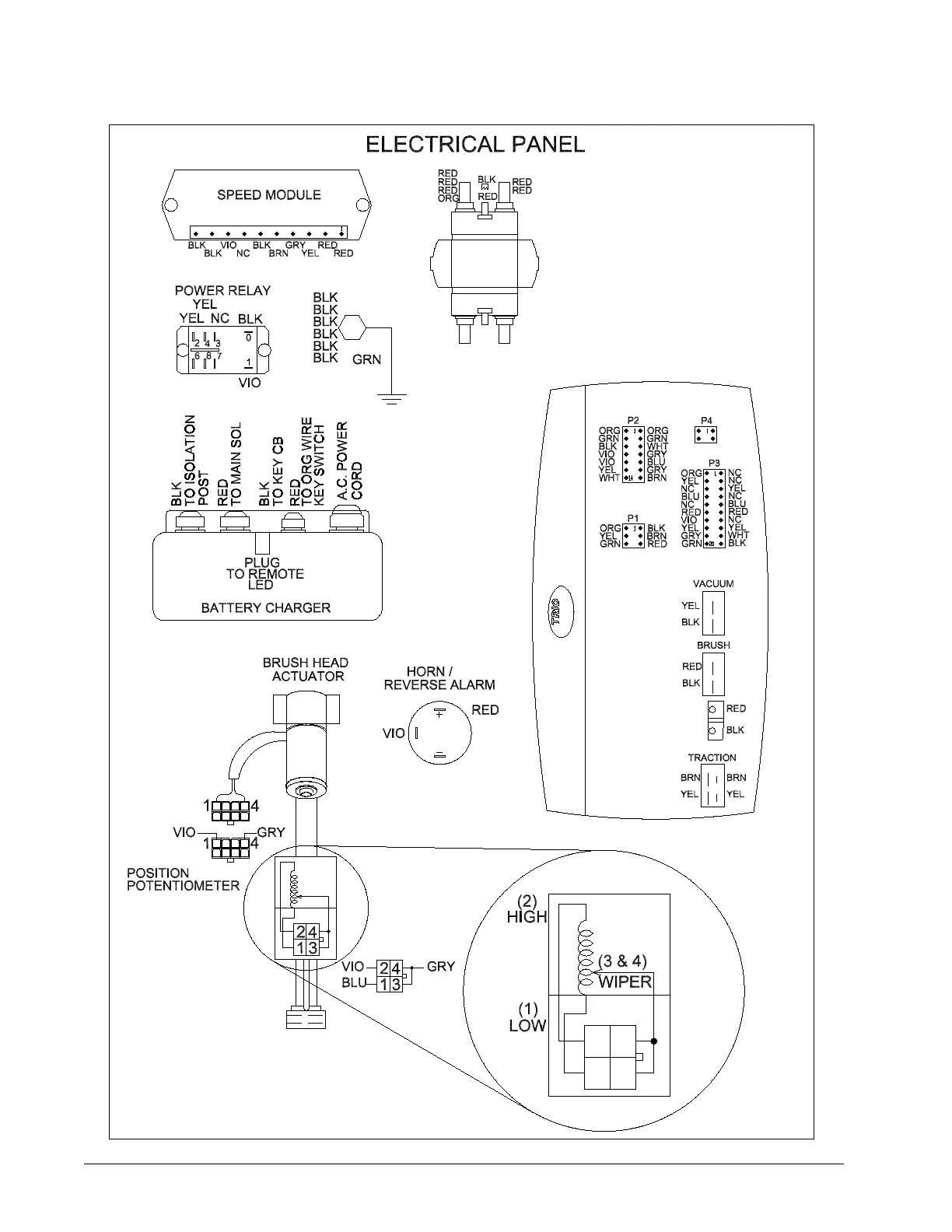
Clarke Focus - Electrical Connection Diagram; Wiring Diagram for Machine Components

Clarke Focus
96 pages
Print Icon
To Next Page IconTo Next Page
To Next Page IconTo Next Page
To Previous Page IconTo Previous Page
To Previous Page IconTo Previous Page
Loading...
Page -88- Clarke
®
Operator's Manual -Focus Rider Scrubber
Clarke
®
FOCUS Rider Scrubber
Electrical Connection Diagram 9/04
Drawing # 70794A (pages 52-55)

Table of Contents

Related product manuals