EasyManua.ls Logo

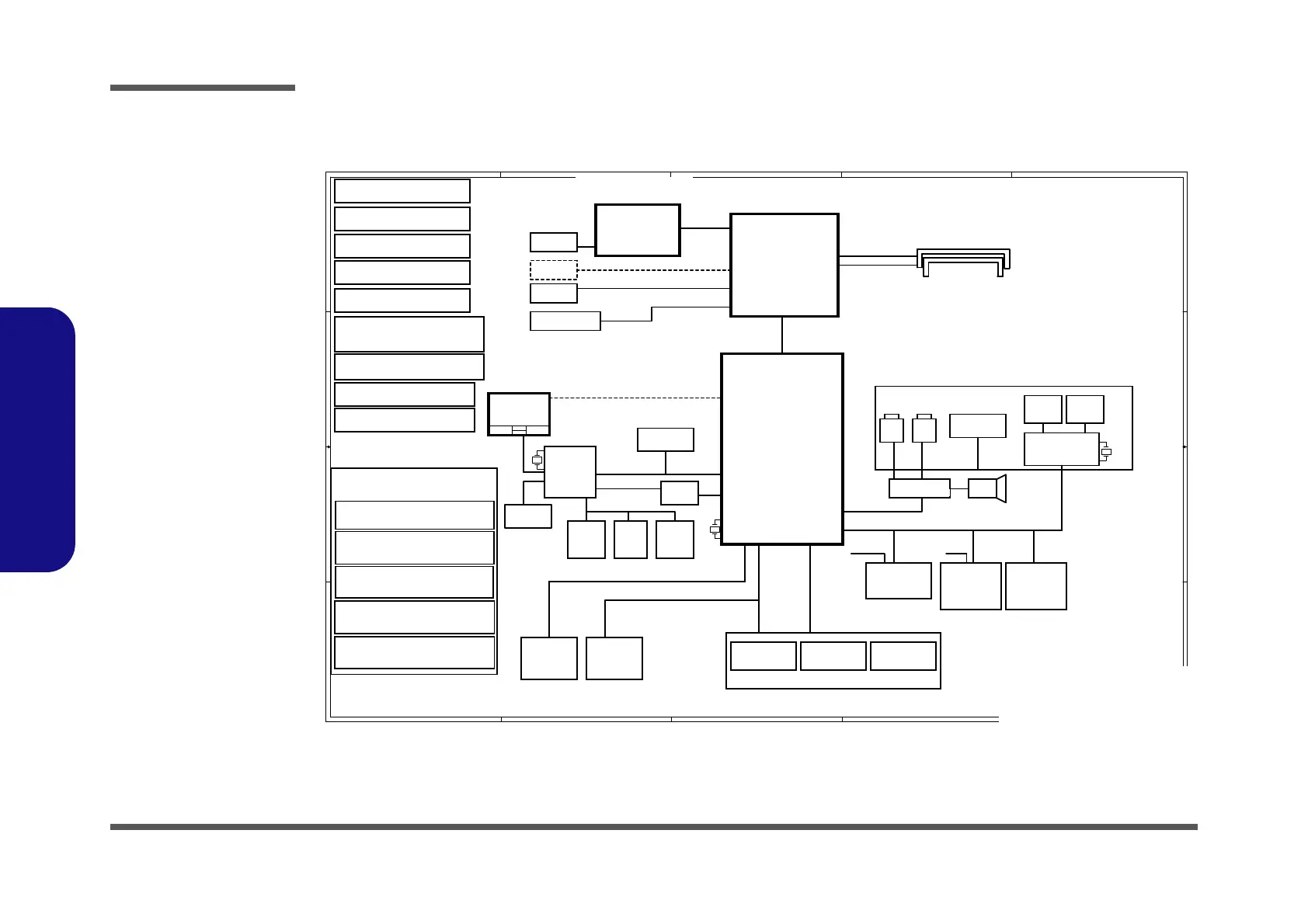
Clevo NB50TK1 - System Block Diagram

Clevo NB50TK1
112 pages
Print Icon
To Next Page IconTo Next Page
To Next Page IconTo Next Page
To Previous Page IconTo Previous Page
To Previous Page IconTo Previous Page
Loading...
Schematic Diagrams
B - 2 System Block Diagram
B.Schematic Diagrams
System Block Diagram
Sheet 1 of 57
System Block
Diagram
5
5
4
4
3
3
2
2
1
1
D D
C C
B B
A A
SHEET 43
GPU NVVDD
1.05V, VCCIO
VCCST_VCCPLL
SHEET 41
5V,3V,5VS,3VS,3.3VA
VDD3,VDD5
SHEET 49
SHEET 42
VCCGT/VCORE Output stage
SHEET 46,47
VDDQ(1.2V),VTT_MEM(0.6V)
SHEET 44
VCC_CORE & VCCGT
NB50TJ1/TK1 System Block Diagram (CoffeeLake)
PCIE PORT 6
TOUCH PAD
LPC
SMART
BATTERY
LAN CARD READER
Channel A
SO-DIMM 0
RAM1
SHEET 48
HP
OUT
SHEET 38
CLICK BOARD
PCIE
480 Mbps
NGFF E Key
M.2 WLAN+BT
SHEET 2,3,4,5,6,7
SPI
DDR4
Coffee Lake S
24 MHz
MIC
IN
SHEET 9
SHEET 40
SHEET 8
128pins LQFP
Channel B
SO-DIMM 0
RAM2
32.768KHz
EC SMBUS AZALIA LINK
DDR4
DDR4
SYSTEM SMBUS
BIOS
SPI
SHEET 24
SATA HDD
SHEET 36
ITE 8587
INT. K/B
EC
Azalia Codec
SHEET 36
SHEET 54
USB2.0
SHEET 33
DMI*4
LGA1151 Socket
SHEET 34
32.768 KHz
10 Gbps
SHEET 24,25,26,27,28,29,30,
31,32
SHEET 2
SATA I/II/III 6.0Gb/s
CCD +D-Mic
SHEET 37
ALC269 VC2
47W~65W
100 MHz
THERMAL
SENSOR
33 MHz
SHEET 41
SMART
FAN
(PWM)
SHEET 39
25 MHz
PCIE*16
RTL8411B
SHEET 53
MULTI BOARD(AUDIO JACK,LAN)
SOCKET
6IN1
RJ-45
USB2.0
USB2.0(5)
USB3.1(2)
USB3.1(3)
SHEET 35
USB3.1 GEN2
USB2.0(8)
USB2.0(3)
USB2.0(2)
SATA III PORT4
2133/2400 MHz
DDR4 / 1.2V
Optional
SHEET 37
TPM 2.0
AC-IN
SHEET 47
VCCSA
SHEET 48
AC_IN Charger
SMB BUS
SHEET 10,11,12,
13,14,15,16,17,18
nVIDIA
Mini DP
SHEET 21
NGFF M Key
PCIE 4X SSD1
SHEET 33
PCIE PORT
12~9
GEN 3
6-71-NB500-D02
6-71-NB507-D02
6-71-NB50S-D02
BOM: 6-77-NB500-D02
BOM:6-77-NB50S-D02
BOM:6-77-NB507-D02
NB50TK1/TJ1
SHEET 53,54
PHONE JACK;USB3.0 ;LAN+CARD READER
MULTI BOARD
SHEET 1~51
MAIN BOARD
5IN1 6-7P-NB505-003
POWER SWITCH BOARD
SHEET 55
PCIE PORT 5
USB3.1
(Optional charger)
6-71-NB502-D01A
BOM:6-77-NB502-D01A
SHEET 57
CLICK BOARD
TYPE-CTYPE-A
SPK-L
SPK-R
SATA
USB2.0
PANEL Connector
SHEET 38
37.5x37.5mm
NGFF M Key
PCIE 4X SSD2
SHEET 33
PCIE PORT
21~24
Nvidia
N17P-G0-A1 DDR5
N17P-G1-A1 DDR5
H370
CNL_PCH_H
Controller
Hub (PCH)
GPU FBVDDQ,PEX_VDD
NV3V3,1V8_RUN
SHEET 50
Mini DP
HDMI
SHEET 20
SHEET 22
SHEET 23
SHEET 35
USB3.1(1)
USB2.0(1)
TYPE-A
USB2.0(14)
6-71-NB50C-D01A
BOM:6-77-NB50C-D01A
SHEET 52
DC JACK BOARD
SATA PORT1A
3C :NB50TJMB-0D
USB3.1(4)
DDI1
DDI2
100*55
Title
Size Document Number Rev
Date: Sheet
of
6-7P-NB505-003
D02
[01] BLOCK DIAGRAM
Custom
157Friday, December 29, 2017
ᙔ!Ϻ!ႝ!တ!!DMFWP!DP/
NB50TJ1-D02
Title
Size Document Number Rev
Date: Sheet
of
6-7P-NB505-003
D02
[01] BLOCK DIAGRAM
Custom
157Friday, December 29, 2017
ᙔ!Ϻ!ႝ!တ!!DMFWP!DP/
NB50TJ1-D02
Title
Size Document Number Rev
Date: Sheet
of
6-7P-NB505-003
D02
[01] BLOCK DIAGRAM
Custom
157Friday, December 29, 2017
ᙔ!Ϻ!ႝ!တ!!DMFWP!DP/
NB50TJ1-D02

Table of Contents

Related product manuals