EasyManua.ls Logo

Clevo NB50TK1 - Audio Codec ALC269 VC2

Clevo NB50TK1
112 pages
Print Icon
To Next Page IconTo Next Page
To Next Page IconTo Next Page
To Previous Page IconTo Previous Page
To Previous Page IconTo Previous Page
Loading...
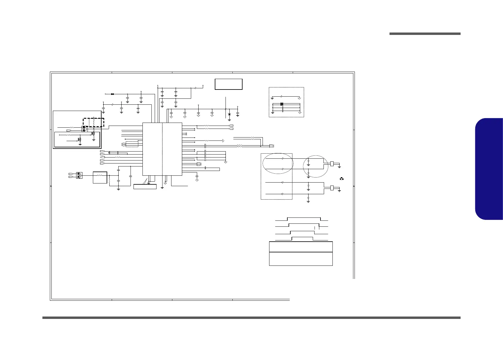
Schematic Diagrams
Audio Codec ALC269 VC2 B - 39
B.Schematic Diagrams
Audio Codec ALC269 VC2
Sheet 38 of 57
Audio Codec
ALC269 VC2
5
5
4
4
3
3
2
2
1
1
D D
C C
B B
A A
Close to Codec
Close to Codec
For 3.3V HDA Link.
Thermal Pad Via Hole Max
DIGITALANALOG
Thermal Pad place 9
Via hole.
PC BEEP
6-19-31001-247
EMI Require
PCB Footprint
ALC269VC2 QFN48-6X 6M
FOR VOLUMN
ADJUST
PIN39 PIN39
PIN46PIN46
PIN25 PIN25
PIN38 PIN38
PIN9PIN9
PIN1 PIN1
಍΋OFU!OBNF
HDA_RST# For 1.5V
HDA Link De-pop
21
J_SPK1
5VS
AZ_RST#
PD#
20ms
3.3VS_AUD
Dpefd!!Tqfblfs!nffu!Q)SNT*!y!91&
Tqfd/JG!Tqfblfs!኱ྗф౗εܭ
Q\SNT^y91&-!Ѹ໪࿶җTqfblfs!Wfoeps
ᇡё/
Speaker wire length less than 8000mils , It don't need LC Filter.
Speaker 8 ohm------> 20mils, Via hole----->C40D20.
Speaker 4 ohm------> 30mils, Via hole----->C40D20.
SPKOUTR+,R-,L+,L- Trace width
GND and AUDG space is
60mils ~ 100mils
Layout note:
60mil
ʁ
50mil
ʁ
6-06-00054-06F
20170714
change
㍉岤
BOM
ὅ䄏
6-06-00543-020
⎗䓐
MTN2002ZG3
6-15-20023-7B0
DVDD-IO
3.3V
,
⎒䓐
D67
ᶨ柮暞ẞ
R615/Q53/Q54/R620
⎗ᶵ枸䔁
,
R616
⎗䦣昌䚜㍍㍍
FOR LAYOUT
HDA_RST# For 1.5V
HDA Link De-pop
PD# Control
AZ_RST# For 3.3V HDA
Link De-pop
20170714
change
CHECK EMI D01 OK
⼴㓡
SHORT
20171228
EMI
PN=6-19-31001-251
AUDG
5VS_AUD
5VS
AUDG
3.3VS
AUDG
AUDG
AUDG
AUDG
5VS
3.3VS_AUD
PVDD1_2
AUDGAUDG
AUDG
3.3VS_AUD
DVDD_IO
AUDG
3.3VS
3.3VS_AUD
HDA_SDIN027
HDA_BITCLK27
HDA_RST#27
HDA_SYNC27
HDA_SDOUT27
MIC_DATA37
MIC_CLK37
PCH_SPKR27
KBC_BEEP40
HEADPHONE-R 36
HEADPHONE-L 36
MIC_SENSE 36
HP_SENSE 36
MIC1_R_M 36
MIC1_L_M 36
KBC_MUTE#40
Title
Size Document Number Rev
Date: Sheet
of
6-71-NB500-D02
D02
[38] AUDIO-ALC269 VC2
C
38 57Friday, December 29, 2017
ᙔ!Ϻ!ႝ!တ!!DMFWP!DP/
NB50TJ1-D02
Title
Size Document Number Rev
Date: Sheet
of
6-71-NB500-D02
D02
[38] AUDIO-ALC269 VC2
C
38 57Friday, December 29, 2017
ᙔ!Ϻ!ႝ!တ!!DMFWP!DP/
NB50TJ1-D02
Title
Size Document Number Rev
Date: Sheet
of
6-71-NB500-D02
D02
[38] AUDIO-ALC269 VC2
C
38 57Friday, December 29, 2017
ᙔ!Ϻ!ႝ!တ!!DMFWP!DP/
NB50TJ1-D02
J_SPKR1
85204-0200N
6-20-43100-102
85204-02R
1
2
NC2
NC1
L28
*HCB1608KF-300T60_short
R517 1K_04
R174 2. 2K_04
C619
0.1u_16V_Y5V_04
C682
*180p_50V_NPO_04
C636
0.1u_16V_Y5V_04
C643
10u_6.3V_X5R_06
R472
6.49K_1%_04
C683
*180p_50V_NPO_04
C604
0.1u_16V_Y5V_04
C615
10u_6.3V_X5R_06
L23
HCB1005KF-121T20
1 2
C600
10u_6.3V_X5R_06
C627
0.1u_16V_Y5V_04
C612
*100p_50V_NPO_04
C419
180p_50V_NPO_04
Q41
*BSS138_NL
G
DS
C602 22p_50V_NPO_04
C642 10u_6.3V_X5R_06
C629 4.7u_6.3V_X5R_06
Q40
*UK3018
G
DS
R433 *100K_04
C
A
A
D51
BAT54CWH
1
2
3
R491 39.2K_1%_04
C256
10u_6.3V_X5R_06
R495 20K_1%_04
R473
4.7K_04
R162 *20mil_short_04
.
L25
HCB1608KF-800T30
C640
2.2u_6.3V_X5R_04
L2 * HCB1005KF-121T20
1 2
C639 *100p_50V_NPO_04
C638 1u_6.3V_X5R_04
R175 2.2K_04
C634 2.2u_6.3V_X5R_04
R474
*10K_04
R456 33_04
C632
0.1u_16V_Y5V_04
C
A
A
D49
BAT54AS3
1
2
3
C588
0.1u_16V_Y5V_04
L19
HCB1005KF-121T20
1 2
R161 *20mil_short_04
C610
100p_50V_NPO_04
L27
*HCB1608KF-300T60_short
C596
10u_6.3V_X5R_06
L22
HCB1005KF-121T20
1 2
D54
*ZD5231BS2
A C
C633
10u_6.3V_X5R_06
C257 0.1u_16V_Y5V_04
.
L26
HCB1608KF-800T30
C424
180p_50V_NPO_04
J_SPKL1
85204-0200N
6-20-43100-102
85204-02R
1
2
NC2
NC1
C255 0.1u_16V_Y5V_04
C630 4.7u_6.3V_X5R_06
C603
0.1u_16V_Y5V_04
C637 0.1u_16V_Y5V_04
R457 *20mil short- p
DIGITAL
ANALOG
U38
ALC269Q-VC2-GR
6-03-02692-031
DVDD1
1
GPIO0-DMIC-DAT
2
GPIO1-DMIC-CLK
3
PD#
4
SDATA- OUT
5
BIT-CLK
6
DVSS2
7
SDATA- IN
8
DVDD-IO
9
SYNC
10
RESET#
11
PCBEEP
12
Sense A
13
LINE2-L
14
LINE2-R
15
MIC2- L
16
MIC2- R
17
Sense-B
18
JDREF
19
MONO-OUT
20
MIC1- L
21
MIC1- R
22
LINE1-L
23
LINE1-R
24
AVSS1
26
VREF
27
LDO_CAP
28
MIC2-VREFO
29
MIC1-VREFO-R
30
MIC1-VREF O-L
31
HP-OUT-L
32
AVSS2
37
OPVEE
34
CBN
35
CBP
36
HP-OUT-R
33
PVDD1
39
SPK-L+
40
SPK-L-
41
PVSS1
42
PVSS2
43
SPK-R+
45
SPK-R-
44
PVDD2
46
EAPD/COMBO
47
SPDIFO
48
AVDD2
38
AVDD1
25
GND
49
R436
0_04
C641
1u_6.3V_X5R_04
C611
0.1u_10V_X5R_04
R499 20K_1%_04
R516 1K_04
MIC_DATA
MIC_CLK
AZ_SDIN0_R
MIC1_VREFO_R
MIC2_VREFO
HEADPHONE-L
HEADPHONE-R
CODEC_CBN
CODEC_CBP
OPVEE
LINE1_L
LINE1_R
MIC1_R_C
MIC1_L_C
JDREF
MONO_OUT
SENSE_B
LINE2_R
LINE2_L
MIC_SENSE
HP_SENSE
MIC1_R
MIC1_L
MIC1_VREFO_L
BEEP_C
CODEC_VREF
SENSE_A
LDO_CAP
MIC1_VREFO_L
MIC1_VREFO_R
BEEP_R
BEEP
SPKOUTL+_L
SPKOUTL-_L
EAPD_MODE
SPKOUTR+_R
SPKOUTR-_R
SPKOUTR-
SPKOUTR+
SPKOUTL+
SPKOUTL-
SPKOUTL-
SPKOUTR-
SPKOUTR+
SPKOUTL+
HDA_RST#
HDA_RST#
CODEC_PD#

Table of Contents

Related product manuals