EasyManua.ls Logo

COBHAM 7516A - Page 115

COBHAM 7516A
167 pages
Print Icon
To Next Page IconTo Next Page
To Next Page IconTo Next Page
To Previous Page IconTo Previous Page
To Previous Page IconTo Previous Page
Loading...
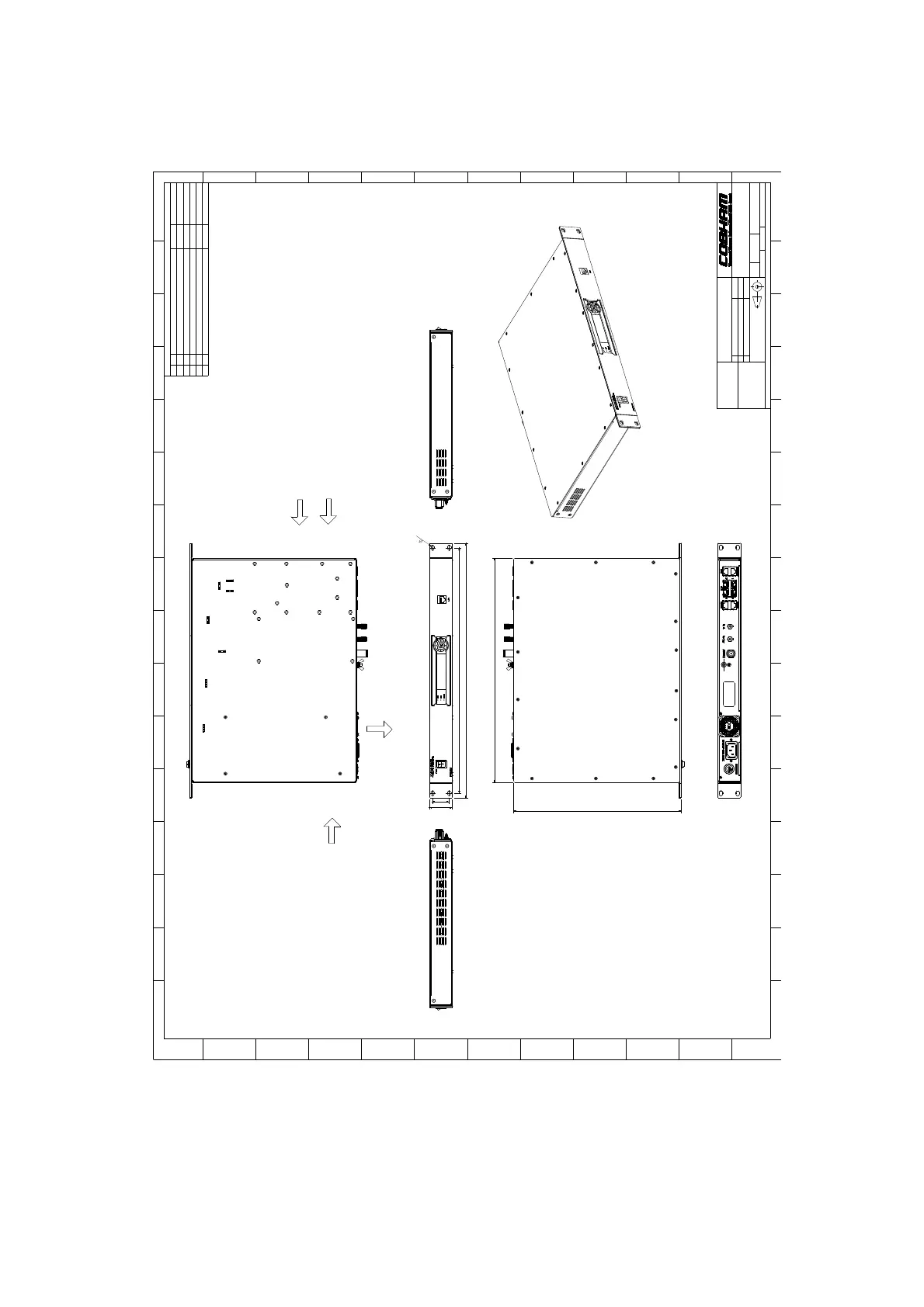
Outline drawings
98-175666-A Chapter A: Technical specifications A-9
A.4.3 BDU
Figure A-3: Outline drawing: BDU
12345678910111213141516
G
F
E
D
C
B
A
H
J
K
L
M
12345678910111213141516
G
F
E
D
C
B
A
H
J
K
L
M
Format A1L
316.8
425.1
465
43.6
31.75
482.6
6.6
THIS DRAWING CONTAINS INFORMATION THAT IS PROPRIETARY TO COBHAM PLC. AND SHOULD NOT BE USED WITHOUT WRITTEN PERMISSION
1 of 1
SHEET
1:2
SCALE
FIRST
ANGLE
PROJECTION
94-176266A1
DRAWING NO.ASSET NO.SIZE
BDU - 7516A
OUTLINE DRAWING
AP.
CH.
MATERIAL:
TITLE
2021-04-05Tommy Bjørn Olsen
DR.
UNLESS OTHERWISE SPECIFIED DIMENSIONS ARE IN
MILLIMETERS AND TOLERANCES ARE IN ACCORDANCE WITH
ISO 2768-m
SURFACE TREATMENT:
HISTORY
APPROVALDATEDESCRIPTIONREV VER
Tommy Bjørn Olsen2021-04-05 FIRST ISSUE01 A
COBHAM PRIVATE
DIRECTION
COOLING
AIR FLOW
DIRECTION
COOLING
AIR FLOW
DIRECTION
COOLING
AIR FLOW

Table of Contents

Related product manuals