EasyManua.ls Logo

COBHAM SAILOR 6000 - External Cabling - MF;HF

COBHAM SAILOR 6000
40 pages
Print Icon
To Next Page IconTo Next Page
To Next Page IconTo Next Page
To Previous Page IconTo Previous Page
To Previous Page IconTo Previous Page
Loading...
4-10
Chapter 4: Installation cables
98-131571-B
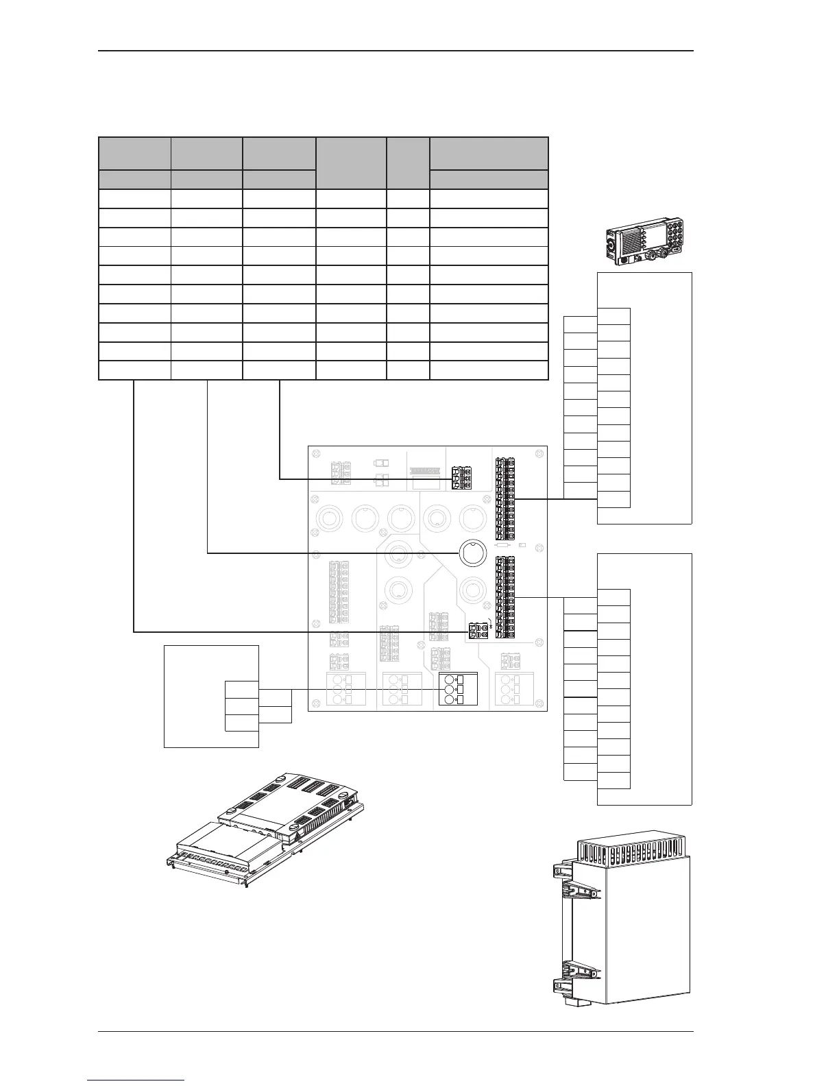
4.3.3 External cabling - MF/HF
99-132823-B
SAILOR 630x
MF/HF Control Unit
SAILOR 636x
MF/HF Transceiver Unit
SAILOR 6081 (Optional up to 3 x 6080)
Power Supply & Charger
10
11
12
RX- tel
TX+ tel
TX- tel
Ext. CU
7
8
9
4
5
6
1
2
3
RX+ tel
CU on/off
GND
CAN L
CAN H
+15V
+24V
GND
SHLD
10
11
12
RX- tel
TX+ tel
TX- tel
TU
7
8
9
4
5
6
1
2
3
RX+ tel
CU on/off
GND
CAN L
CAN H
+15V
+24V
GND
SHLD
24V DC+
24V DC-
Power Supply
1
2
GND
3
J52
J36
J70
J32
J35
J33
1
3
Power IN 24VDC
GND
1
2
1 SHLD
2 GND
3 +24V
4 +15V
5 CAN H
6 CAN L
8 CU_ON
7 C_GND
9 RX+
11 TX+
10 RX-
12 TX-
Thrane & Thrane 38-130999-F
Console 6000 Connection
GND
+
-
12 TX-
11 TX+
10 RX-
9 RX+
8 CU_ON
7 C_GND
6 CAN L
5 CAN H
4 +15V
3 +24V
2 GND
1 SHLD
MF/HF
Ext. CU
Handset
3 GND
2 NMEA-
1 NMEA+
TU
Select
MF/HF
VHF &
0183
NMEA
2182
PRINTER
TERMINAL/
MESSAGE
J42
1
J41
1
J30
1
J61
J43
J26
J25
J24
J60
J21
J10
J51
J50
J40
J80
J31
1
J22
1
J23
1
W1
R1
J11
J12
J34
J20
LABEL
Terminal
mini-C
Power IN 24VDC
Power IN 15VDC
Power IN 24VDC
GND
GND
GND
Out
3
3
3
MSG
TEST
1
2
1
2
2
1
NC
NC
24VDC-
24VDC+
4
3
2
1
3 GND
1 24VDC+
2 24VDC-
5 CAN_L
3C_GND
4 CAN_H
2 15VDC+
1 SHLD
MSG Terminal
3 GND
2 24VDC-
1 24VDC+
2 AIS-
1 AIS+
7 Ext.Sp+
Forced
9 Lo Pwr
8 Ext.Sp-
6 GND
5 DSC Al
4 DSC OC
3 AUX OC
2 VDR-
1 VDR+
ACC
+
-
+
-
+
-
Power Out
AIS
AUX
1 24VDC+
2 24VDC-
2 24VDC-
1 24VDC+
Power
Telex
TU-CU Bus
LIGHT
Printer PWR
Power IN 24VDC
Dimmer
Gooseneck
Power
Terminal
Antenna
TCU
AUX
Handset
ACC
VHF
ETHERNET
External cabling
Connection
Board J36
Connection
Board J33
Connection
Board J70
Description
Wire
color
CU - AUX Connector
LTW 10 pin
Pin Pin Pin Pin
1 NMEA+ Brown 1
2 NMEA- Blue 2
1 2182 Select White 3
NC Green 4
5 MIC Yellow 5
6 EAR Grey 6
7 HOOK_PTT Pink 7
8 12V DC Red 8
2 9 GND Black 9
2 10 GND Orange 10

Related product manuals