EasyManua.ls Logo

ComAp InteliDrive FLX LITE - Binary Output Protections; Magnetic Pick-Up

ComAp InteliDrive FLX LITE
228 pages
Print Icon
To Next Page IconTo Next Page
To Next Page IconTo Next Page
To Previous Page IconTo Previous Page
To Previous Page IconTo Previous Page
Loading...
ID-FLX Lite Global Guide
34
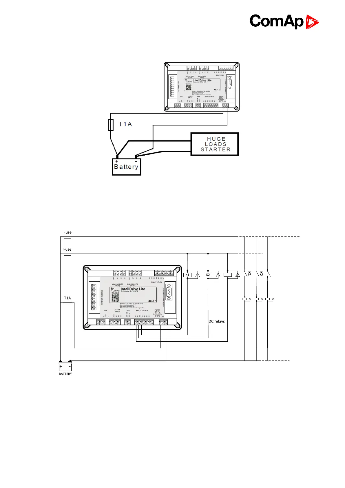
Fuse value and type depends on number of connected devices and wire length. Recommended fuse (not fast)
type T1A. Not fast due to internal capacitors charging during power up.
4.7.5 Binary output protections
Do not connect binary outputs directly to DC relays without protection diodes, even if they are not connected
directly to controller outputs.
4.7.6 Magnetic pick-up
To ensure proper function:
Use a shielded cable
Be aware of interference signal from Speed governor, if one speed pick up is used.

Table of Contents

Related product manuals