EasyManua.ls Logo

Comprag A55 - Prüfen des Ölstands

Default Icon
88 pages
Print Icon
To Next Page IconTo Next Page
To Next Page IconTo Next Page
To Previous Page IconTo Previous Page
To Previous Page IconTo Previous Page
Loading...
54
Version 4.5
Lagerung Elektro-
motor
nach-
schmieren
Einlassventil Prüfen
Mindestdruck-
ventil
Prüfen
Sicherheitsventil Prüfen
Wenn 6000 Betriebsstunden erreicht sind, sollte alternativ alle 2000 Stunden nach Plan
M-2 oder M-3 gewartet werden. Tägliche, wöchentliche, monatliche und jährliche Wartung-
sarbeiten ersetzen nicht die zeitlich vorgegebenen Wartungsintervalle..
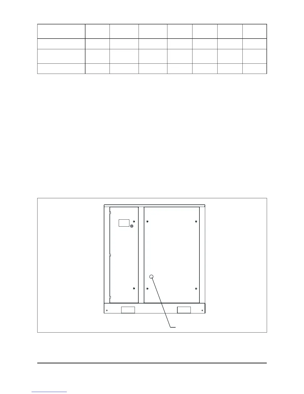
5.2 Prüfen des Ölstands
Kontrollieren Sie den Ölstand täglich. Um den Ölstand zu erreichen, stoppen Sie den Kom-
pressor und entfernen Sie das Frontpanel.
Der Ölstand kann visuell am Ölstandsanzeiger (1) des Kompressors abgelesen werden,
wenn dieser abgeschaltet ist.
Der Ölstand muss immer im Sichtglas zu erkennen sein.
Wenn dies nicht der Fall ist, muss neues Öl nachgefüllt werden. Nutzen Sie ein Vorspan-
nungsmessgerät, um die Spannkraft des Riemens zu prüfen.
Bild 5.2 Ölstandsüberwachung
1

Table of Contents

Related product manuals