EasyManua.ls Logo

Comprag A55 - Austausch des Luft;Öl-Separators; Wärmeaustauscher Reinigen

Default Icon
88 pages
Print Icon
To Next Page IconTo Next Page
To Next Page IconTo Next Page
To Previous Page IconTo Previous Page
To Previous Page IconTo Previous Page
Loading...
58
Version 4.5
installieren Sie die neuen. Nach der Installation mit der richtigen Spannkraft (siehe Abschnitt
5.3, Überprüfung des Antriebriemens) müssen die 2 Bolzen (2) die Muttern und die 4 Schrau
-
ben wieder angezogen werden. Prüfen Sie die Riemenspannung bei vier Betriebsstunden des
Kompressors-mithilfe von Abschnitt 5.3.
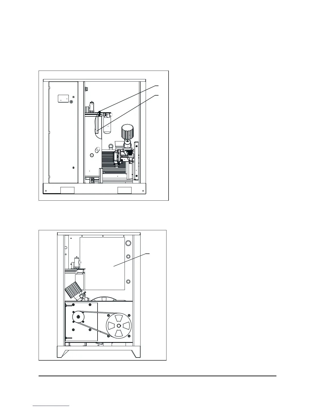
5.7 Austausch des Luft/Öl-Separators
Das Separatorbauteil (1) ist innerhalb
des Separatorbehälters angeordnet.
Öffnen Sie das Frontpanel, um es
auszutauschen. Lösen Sie die Schrau
-
ben (2) und entfernen Sie sorgfältig den
Deckel auf der Behälteroberseite. Lösen
Sie dafür bei Bedarf einige Schlauchan
-
schlüsse. Entfernen Sie den verbrauch-
ten Separator und installieren an einen
neuen. Montieren Sie den Behälterdek
-
kel wieder vollständig.
Bild 5.7 Austausch des Luft/Öl-Separator
5.8 Wärmeaustauscher reinigen
Öffnen Sie das Frontpanel um den Wär-
meaustauscher (1) zu erreichen.
Reinigen Sie den Wärmeaustauscher
regelmäßig um die Kühlfuktion optimal
zu halten.
Entfernen Sie Staub und Schmutz mit
einer weichen Bürste, dann blasen Sie
den Wärmeaustauscher von unten nach
oben mit Druckluft ab. Die Düse sollte
im 90° Winkel zu der Kompressorebene
gehalten werden.
1
Fig. 5.8 Cleaning radiator

Table of Contents

Related product manuals