EasyManua.ls Logo

Daikin AZQS100B8V1B - Page 24

Daikin AZQS100B8V1B
44 pages
Print Icon
To Next Page IconTo Next Page
To Next Page IconTo Next Page
To Previous Page IconTo Previous Page
To Previous Page IconTo Previous Page
Loading...
12Technicaldata
Installerreferenceguide
24
AZQS100~140B8V1B+AZQS100~140B7Y1B
Splitsystemairconditioners
4P3855291–2014.08
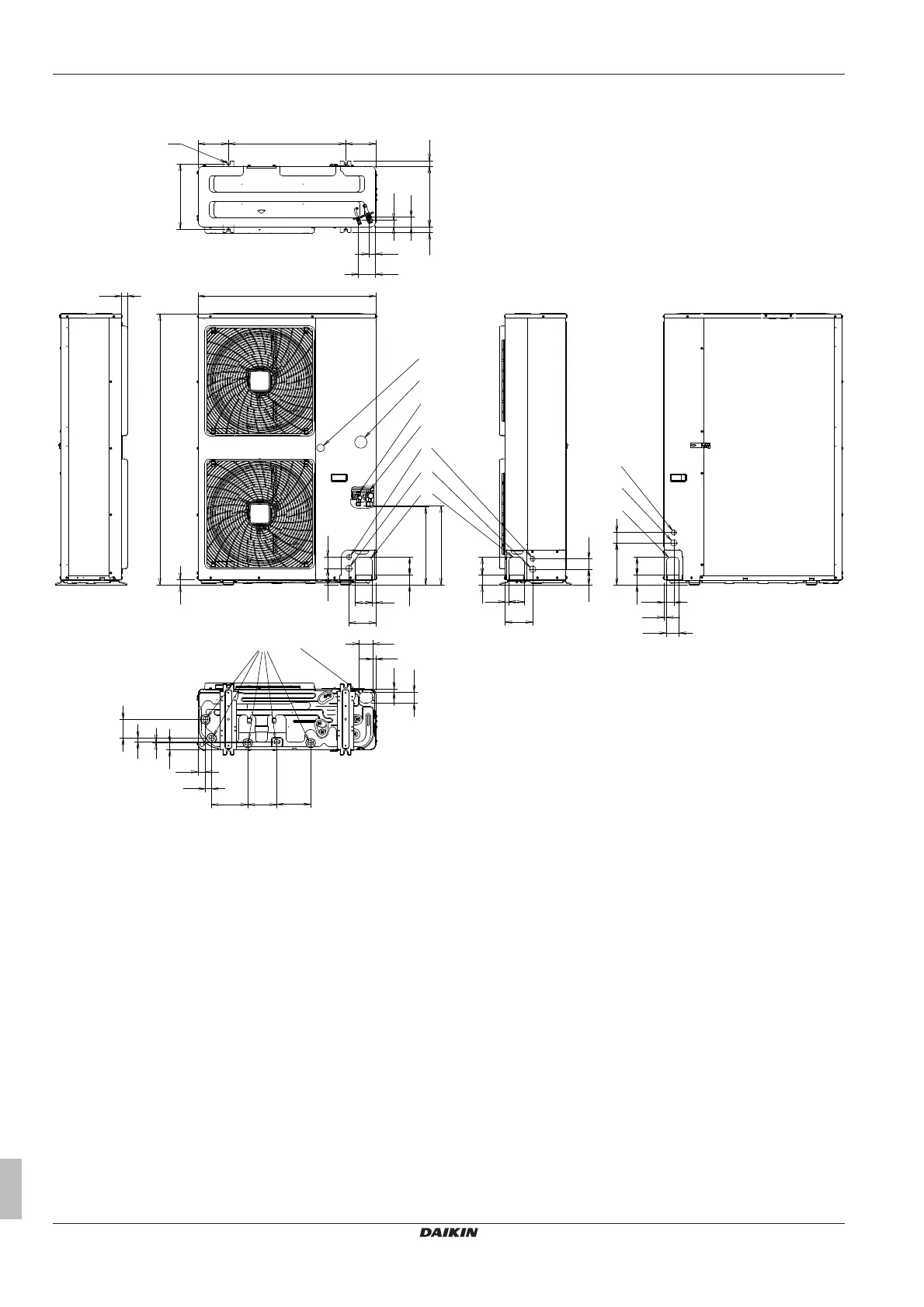
AZQS140(dimensionsinmm)
h e
e
f
g
e
f
g
a
b
c
d
i
32
28
1430
940
19
142
89
88
60
53 95
414
420
19
145
80
84 55
53 95
52
13
53
223
95
55
345
(340350)
160 620 160
37
52
30
320
30
37
91
40
32
191
154
179
36
6
19
99
16
58
16
71
67
3D076346
a Gaspipeconnection(Ø15.9flareconnection)
b Liquidpipeconnection(Ø9.5flareconnection)
c Internalserviceport(intheunit)
d EarthingterminalM5(intheswitchbox)
e Refrigerantpipingintake
f Powersupplywiringintake(knockoutholeØ34)
g Controlwiringintake(knockoutholeØ27)
h Drainhole
i Anchorpoint(bolt4×M12)

Table of Contents

Other manuals for Daikin AZQS100B8V1B

Related product manuals