EasyManua.ls Logo

Daikin AZQS100B8V1B - Wiring Diagram; Wiring Diagram: Outdoor Unit

Daikin AZQS100B8V1B
44 pages
Print Icon
To Next Page IconTo Next Page
To Next Page IconTo Next Page
To Previous Page IconTo Previous Page
To Previous Page IconTo Previous Page
Loading...
12Technicaldata
Installerreferenceguide
30
AZQS100~140B8V1B+AZQS100~140B7Y1B
Splitsystemairconditioners
4P3855291–2014.08
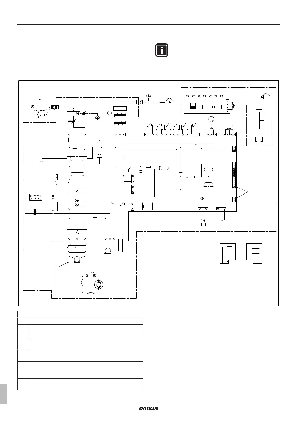
12.5 Wiringdiagram
12.5.1 Wiringdiagram:Outdoorunit
Thewiringdiagramisdeliveredwiththeunit,locatedattheinsideof
theservicecover.
INFORMATION
Foralegendexplainingthefiguresbelow,refertotheend
ofthistopic.
AZQS100_V1
R6
K15R
TC
RC
K10R
K11M
+
C1
V3D
V1T
X25A
PS
K13R
X804A
X806A
X805A
X106A
M1F
MS
HAP
H1P H3P H5P H7P
H2P H4P H6P
BS1 BS2
BS3 BS4
ON
DS1
2
1
OFF
X11A
X12A
R3T
R1T
X13A
R6T
R2T
R4T
R5T
M
S1PH
P>
S1PL
P<
K1R
Y1S
A2P
A1P
W
V
U
X31AX32A
X21A
Y1E
C2
C3
A1P
L1R
X1M
HAP
F8U
F7U
E1H
X6A
6
V2R
N
220-240V
1N 50Hz
L
NA
L
N
LA
RED BLU
X803A
2 31
Z3C
N=1
X1M
X1M
Q1DI
F2U
F1U
Z1F
Z3F
E1
Z2F
V2T
V2D
+ -
HR1
HR3
L1R
HR4
HR2
Z5C
N=6
V1R
W
V
RED
~
Z4C
X502A
N=4
U
WHT
V
W
U
3
MS
BLU
M1C
F6U
R2
R4
+ -
V1D
R5
+t°
R8T
X77A
X28A
X5A
8
X205A
A2P
R7T
+t°
WHT
BRN
PPL
RED
Z2C
N=3
Z6C
N=1
Z1C
N=5
BLK
WHT
RED
K14R
K2R
GRN/YLW
GRN
2D089497B
Indoor
SEE NOTE 7
Rear viewFront view
Electronic component assembly
Position of elements
Position of compressor terminal
Notes:
1 Symbols(seelegend).
2 Colours(seelegend).
3 Thiswiringdiagramappliesonlytotheoutdoorunit.
4 Refertothewiringdiagramsticker(onthebackoftheservice
cover)forhowtousetheBS1~BS4andDS1switches.
5 Whenoperating,donotshortcircuitprotectivedevicesS1PH
andS1PL.
6 Refertotheservicemanualforinstructionsonhowtosetthe
selectorswitches(DS1).Thefactorysettingofallswitchesis
OFF.
7 Refertothecombinationtableandtheoptionmanualforhow
toconnectthewiringtoX6A,X28AandX77A.

Table of Contents

Other manuals for Daikin AZQS100B8V1B

Related product manuals