EasyManua.ls Logo

Daikin AZQS100B8V1B - 12 Technical Data; Overview: Technical Data; Dimensions and Service Space; Dimensions: Outdoor Unit

Daikin AZQS100B8V1B
44 pages
Print Icon
To Next Page IconTo Next Page
To Next Page IconTo Next Page
To Previous Page IconTo Previous Page
To Previous Page IconTo Previous Page
Loading...
12Technicaldata
Installerreferenceguide
23
AZQS100~140B8V1B+AZQS100~140B7Y1B
Splitsystemairconditioners
4P3855291–2014.08
12 Technicaldata
12.1 Overview:Technicaldata
Thischaptercontainsinformationabout:
Dimensionsandservicespace
Components
Pipingdiagram
Wiringdiagram
Technicalspecifications
12.2 Dimensionsandservicespace
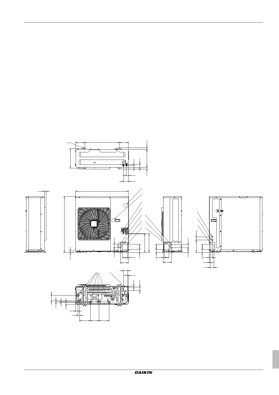
12.2.1 Dimensions:Outdoorunit
AZQS100+125(dimensionsinmm)
h
e
e
f
g
e
f
g
a
b
d
c
3D076345
i
52
13
67
53
223
95
55
84
55
19
80
145
53
95
19
89
142
53
95
88
60
28
990
940
32
345
(340350)
160 620
160
37
91
30 320 30
37
52
40
32
191
154 179
36
6
19
99
16
16
331
337
71
58
a Gaspipeconnection(Ø15.9flareconnection)
b Liquidpipeconnection(Ø9.5flareconnection)
c Internalserviceport(intheunit)
d EarthingterminalM5(intheswitchbox)
e Refrigerantpipingintake
f Powersupplywiringintake(knockoutholeØ34)
g Controlwiringintake(knockoutholeØ27)
h Drainhole
i Anchorpoint(bolt4×M12)

Table of Contents

Other manuals for Daikin AZQS100B8V1B

Related product manuals