EasyManua.ls Logo

Daikin AZQS100B8V1B - Page 31

Daikin AZQS100B8V1B
44 pages
Print Icon
To Next Page IconTo Next Page
To Next Page IconTo Next Page
To Previous Page IconTo Previous Page
To Previous Page IconTo Previous Page
Loading...
12Technicaldata
Installerreferenceguide
31
AZQS100~140B8V1B+AZQS100~140B7Y1B
Splitsystemairconditioners
4P3855291–2014.08
AZQS100+125_Y1
K1R
R2
K1M
L12A
L22A
L32A
L11A
L31A
L21A
F4U
F3U
F5U
F8U
F7U
X77A
X13A
R6T
R5T
F6U
GRN
Z3F
E
GRN
F2U
F1U
N=1
Z2C
N=1
Z1C
X104A
X803A
Q1DI
-
-
-
P2
P1
N=2
Z4C
+
V2R
L3AL2A
L1A
L1
L2
L1R
BRN
ORG
R3
K2R
F1U
X9A
L3L1
L2
3N~50Hz
380-415V
X108A
X8A
X111A
R10T
HAP
X4A
+
V3R
+
C1
X516A
HAP
3
2
1
A2P
+
+
C2
C3
+
R1
V1R
W
V
U
X106A
WV
U
M1C
MS
MS
M1F
N=6
Z3C
R2T
X12A
Y1E
X21A
R3TR1T
X11A
M
N
L3
N
X1M
1 2 3
X1M
R4T
NA
Z1F
Y1S
X25A
K1R
ON
OFF
1 2
DS1
BS1
X6A
PS
E1
GRN/
YLW
E1H
X28A
K2R
A1P
X1M
A
A2P
3~
X109A
Z2F
BS2
BS3
BS4
H1P
H2P
H3P
H4P
H5P
H6P
H7P
L1R
B
2D080114B
W
U
V
BLU
RED
WHT BLK
RED
WHT
BLK
X32A
P>
S1PH
A1P
HAP
RED
WHT
BLK
BLK
WHT
RED
N=1
Z5C
(NOTE 6)
POSITION OF
COMPRESSOR
TERMINAL
VIEW BVIEW A
EL. COMPO. ASSY FRONT
(NOTE 2)
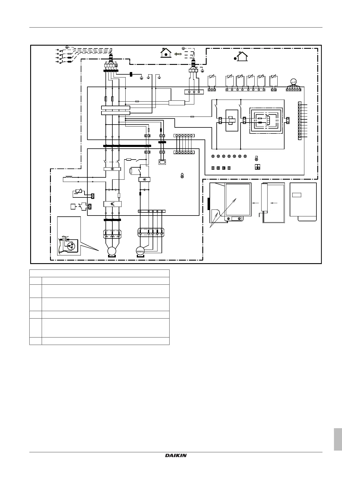
Notes:
1 Thiswiringdiagramappliesonlytotheoutdoorunit.
2 Refertothecombinationtableandtheoptionmanualforhow
toconnectthewiringtoX6A,X28AandX77A.
3 Refertothewiringdiagramsticker(onthebackoftheservice
cover)forhowtousetheBS1~BS4andDS1switches.
4 Whenoperating,donotshortcircuitprotectivedeviceS1PH.
5 Refertotheservicemanualforinstructionsonhowtosetthe
selectorswitches(DS1).Thefactorysettingofallswitchesis
OFF.
6 Onlyfor71class.

Table of Contents

Other manuals for Daikin AZQS100B8V1B

Related product manuals