EasyManua.ls Logo

Daikin AZQS100B8V1B - Page 34

Daikin AZQS100B8V1B
44 pages
Print Icon
To Next Page IconTo Next Page
To Next Page IconTo Next Page
To Previous Page IconTo Previous Page
To Previous Page IconTo Previous Page
Loading...
12Technicaldata
Installerreferenceguide
34
AZQS100~140B8V1B+AZQS100~140B7Y1B
Splitsystemairconditioners
4P3855291–2014.08
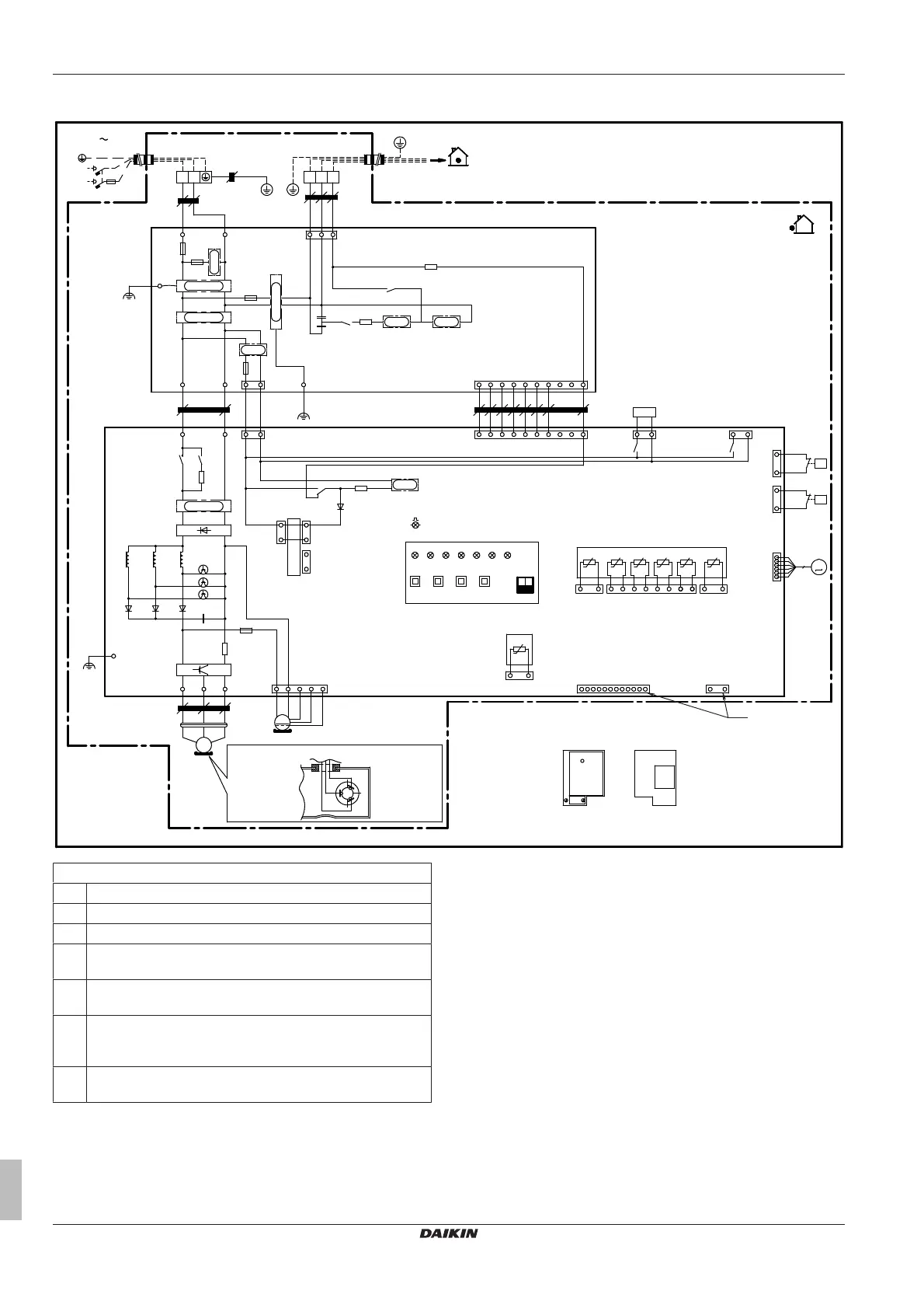
AZQS125_V1
N
220-240V
1N 50Hz
L
NA
L
N
LA
F2U
F1U
Z1F
Z1C
N=2
Z6C
N=1
RED BLU
GRN/YLW
Z4F
F4U
Z3F
X803A
R3
K15R
TC
RC
K14R
R4
Z2F
F3U
X98A
NCLC
E2
X802A
E3
X99A
RED BLU GRN
Z3C
N=2
NBLB
X801A
Z5C
N=1
R1
Z6F
K10R
K11M
L3R
L2RL1R
+
C1
V3DV2DV1D
V2T
V1T
V3T
X25A X28A
R5
PS
K13R
V4D
X804A
X806A
X805A
F6U
R2
+ -
V1R
WV
RED
~
Z4C
N=6
U
WHT
V W
U
3
MS
BLU
M1C
E1
X106A
M1F
MS
HAP
H1P H3P H5P H7P
H2P H4P H6P
BS1 BS2 BS3 BS4
ON
DS1
2
1
OFF
X111A
R7T
X11A
X12A
R3T
R1T
X13A
R6T
R2T
R4T
R5T
M
S1PH
P>
S1PL
P<
GRN
K1R
K4R
Y1S
A2P
A1P
W
V
U
2
3
1
Z2C
N=2
X1MX1M
X31A
X32A
X21A
Y1E
C3
C2
A1P
A2P
X1M
HAP
X77A
X6A
6
Q1DI
V2R
BLK
BLU
RED
Z5F
X502A
GRN
2D089489B
SEE NOTE 7
Rear viewFront view
Electronic component assembly
Position of elements
Position of compressor terminal
Notes:
1 Symbols(seelegend).
2 Colours(seelegend).
3 Thiswiringdiagramappliesonlytotheoutdoorunit.
4 Refertothewiringdiagramsticker(onthebackoftheservice
cover)forhowtousetheBS1~BS4andDS1switches.
5 Whenoperating,donotshortcircuitprotectivedevicesS1PH
andS1PL.
6 Refertotheservicemanualforinstructionsonhowtosetthe
selectorswitches(DS1).Thefactorysettingofallswitchesis
OFF.
7 Refertothecombinationtableandtheoptionmanualforhow
toconnectthewiringtoX6A,X28AandX77A.

Table of Contents

Other manuals for Daikin AZQS100B8V1B

Related product manuals