EasyManua.ls Logo

Daikin brp069a42 - Location of Terminals and Switches

Daikin brp069a42
161 pages
Print Icon
To Next Page IconTo Next Page
To Next Page IconTo Next Page
To Previous Page IconTo Previous Page
To Previous Page IconTo Previous Page
Loading...
60
• Control systems
• intelligent Touch Manager • ED721208
Understanding where terminals and switches are located
Understand the arrangement of terminals and the location of openings on the unit and plan how to route the cable and in which order
to connect its wires to facilitate the installation procedure. For connection details including the cable type and terminal size, refer to “2.
Connection.
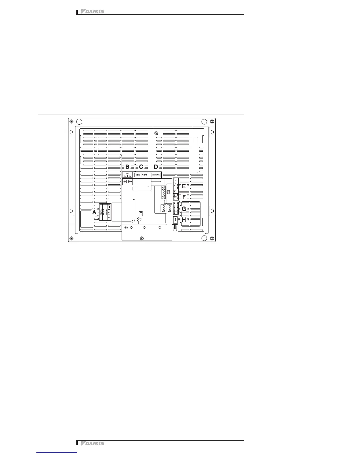
Rear face
Most terminals are located on the rear face of the intelligent Touch Manager. However, they are covered with a terminal cover for safety
reasons. Removing 2 screws to detach this cover reveals various types of terminals as shown below.
<Rear face of intelligent Touch Manager>
A [POWER] The power line connection terminals. A power supply voltage of 100 to 240 VAC (at 50/60 Hz) is required. Near this terminal
block, there is a blue resin cable mount used for securing the power supply cables with cable ties.
B [DIII] The communication line connection terminals for “DIII-NET, which enables communications with DAIKIN’s air conditioning
equipment.
C [LINE, PHONE] The sockets used when subscribing to the DAIKIN Air Conditioning Network Service System online monitoring service
for air-conditioning systems. To use the Air Conditioning Network Service System” service, you need to sign a separate maintenance
contact.
D [RESERVE] No Use.
E [RS-485] The terminals for connecting serial equipment.
F [plus ADP IF] The terminals for connecting one or more iTM plus adaptors when the intelligent Touch Manager is used to control
more air conditioning devices.
G [Di (1-4), COM] The terminals for connecting an external signal input device for stopping air conditioners in an emergency, or for
connecting electric energy meters for calculating the electricity usage of individual air conditioners.
H [LAN] The socket for connecting the intelligent Touch Manager to an Ethernet network.
3.1.2 Location of terminals and switches

Table of Contents

Related product manuals