EasyManua.ls Logo

Daikin brp069a42 - Itm Plus Adaptor; Main Specifications

Daikin brp069a42
161 pages
Print Icon
To Next Page IconTo Next Page
To Next Page IconTo Next Page
To Previous Page IconTo Previous Page
To Previous Page IconTo Previous Page
Loading...
71
• Control systems
• intelligent Touch Manager • ED721208
3.2. iTM plus adaptor
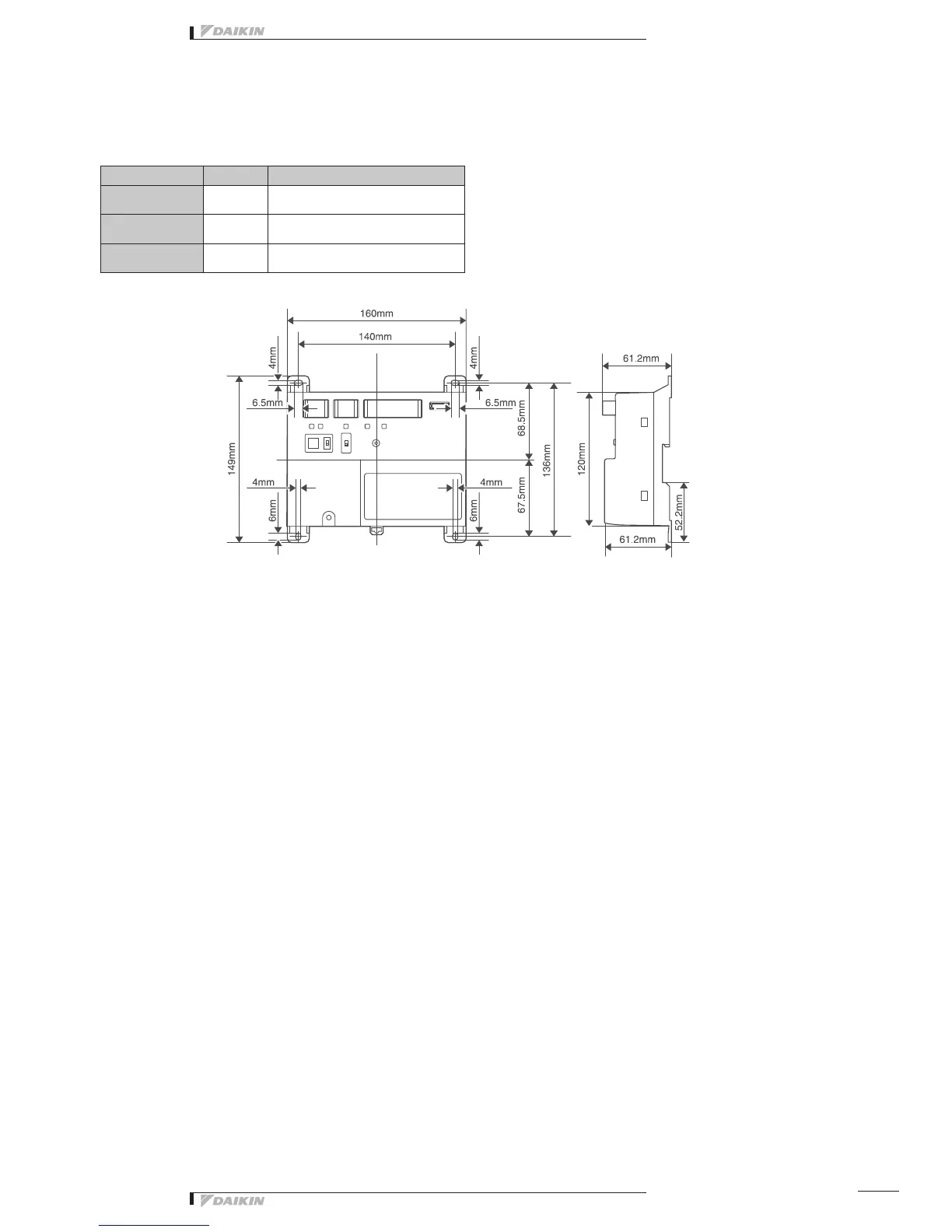
3.2.1. Main specifications
Port Number Use
plus ADP IF 1ch iTM plus adaptor (Up to 7 adaptors)
D III 1ch D III-NET (Up to 64 groups)
Di(Pi) 4ch Pulse input, contact signal input
POWER SUPPLY: DCM601A52 AC100-240V(± 10%)(50/60Hz)
INPUT: 6W
MASS: 0.5kg
FUSE AMP: 3.15A
Operatingtemperaturelimit:-10°C-+50°C
Operating humidity limit: MAX. 15°C - 85%
Storagetemperaturerange:-15°C-+60°C
Installation direction: Vertical direction only

Table of Contents

Related product manuals