EasyManua.ls Logo

Daikin brp069a42 - Dimensions; Location of Terminals and Switches

Daikin brp069a42
161 pages
Print Icon
To Next Page IconTo Next Page
To Next Page IconTo Next Page
To Previous Page IconTo Previous Page
To Previous Page IconTo Previous Page
Loading...
72
• Control systems
• intelligent Touch Manager • ED721208
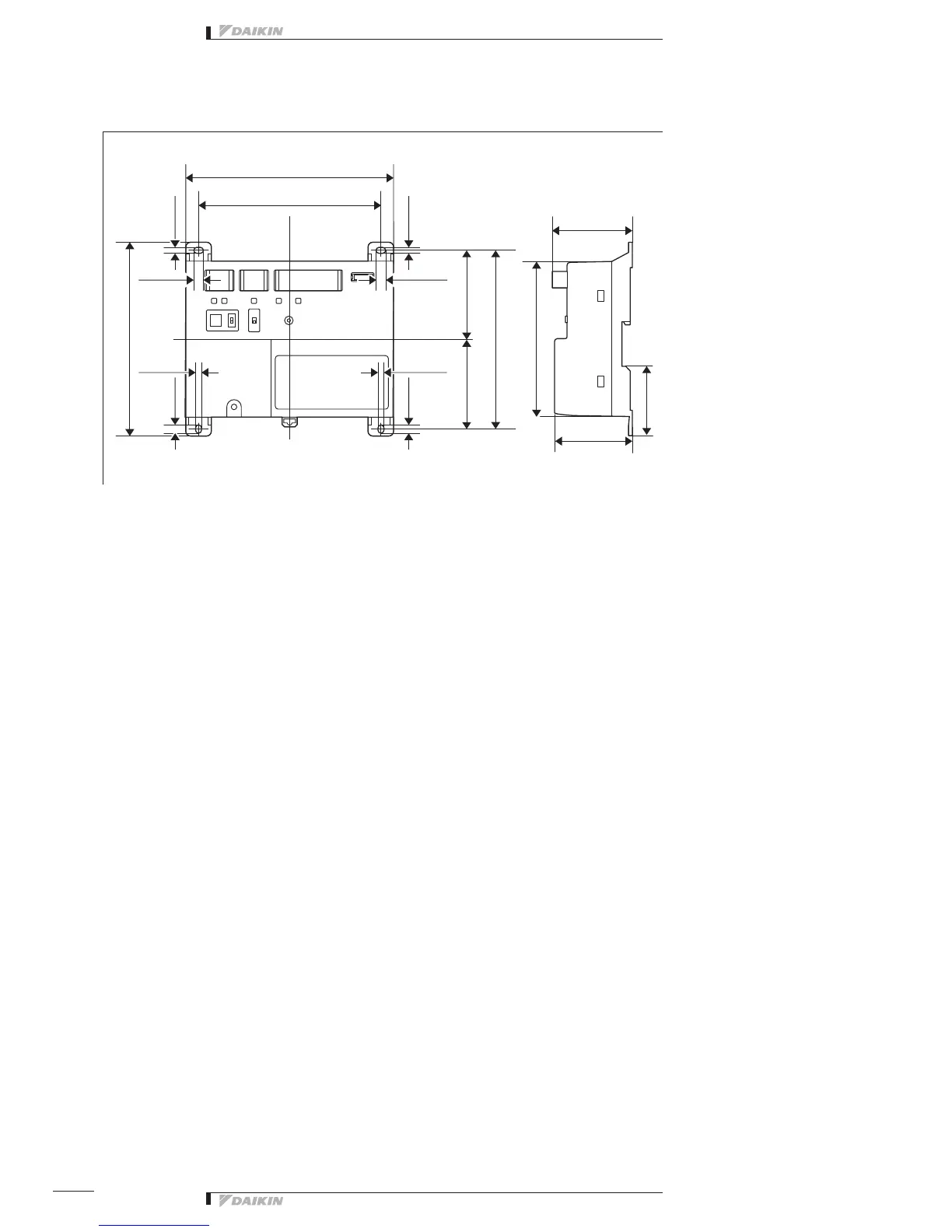
3.2.1.1 Dimensions
iTM plus adaptor body
149mm
120mm
136mm
68.5mm67.5mm
52.2mm
160mm
61.2mm
61.2mm
6.5mm 6.5mm
4mm
4mm
6mm
4mm
6mm
140mm
4mm
3.2.2 Location of terminals and switches
Understand the arrangement of terminals and switches on the unit and draw up an efficient work plan. For connection details including
the cable type, terminal size, and wiring precautions, refer to “2. Connection”.
Front face of iTM plus adaptor
All the terminals used during installation are located on the front face of the iTM plus adaptor. Note that only the power terminals are
covered with a terminal cover for safety. You can remove this cover by loosening a single screw.
In addition to these terminals, several switches and LEDs are also located on the front face of the iTM plus adaptor.

Table of Contents

Related product manuals