EasyManua.ls Logo

Daikin brp069a42 - Page 77

Daikin brp069a42
161 pages
Print Icon
To Next Page IconTo Next Page
To Next Page IconTo Next Page
To Previous Page IconTo Previous Page
To Previous Page IconTo Previous Page
Loading...
76
• Control systems
• intelligent Touch Manager • ED721208
Connecting intelligent Touch Manager
The iTM plus adaptor is a device that enables you to control more air conditioners with the intelligent Touch Manager. It needs to be
connected to an intelligent Touch Manager to provide this capability.
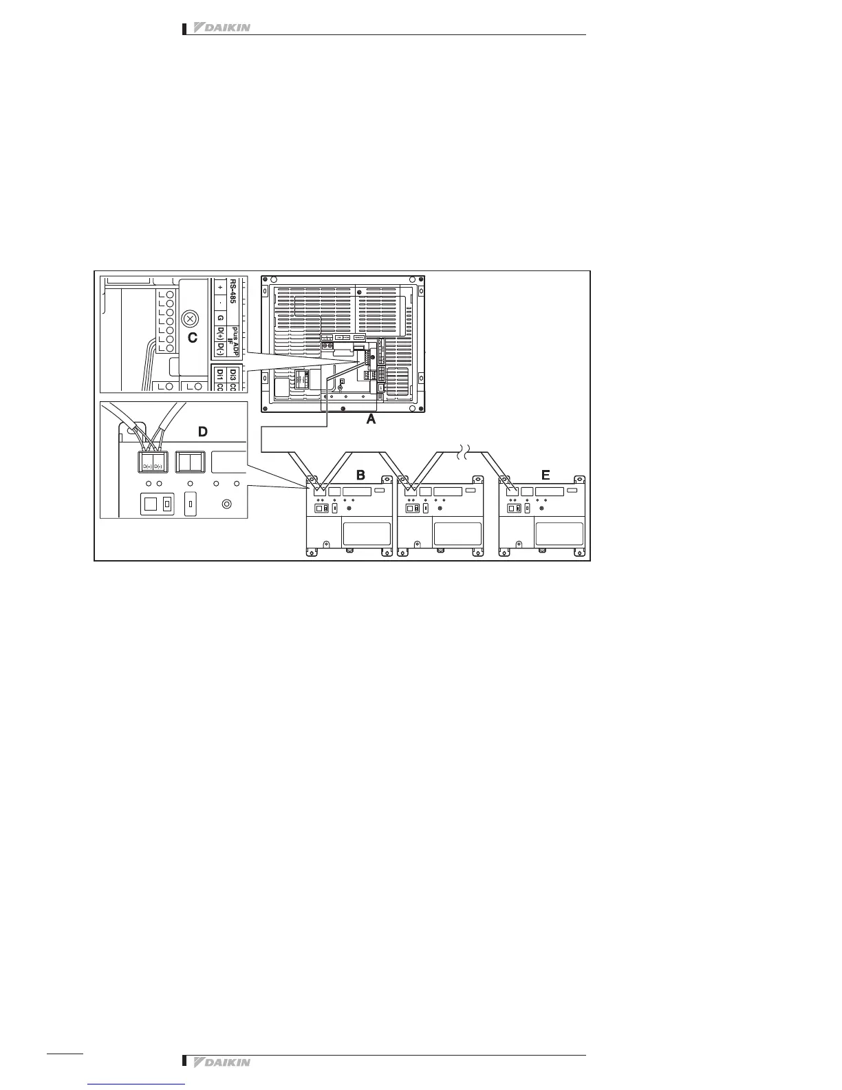
Terminals location and conceptual connection diagram
Connect the terminals located in the “plus ADP IF” section of the iTM plus adaptor to the corresponding terminals located in the plus ADP
IF” section on the rear face of your intelligent Touch Manager. Note that these terminals have polarity. Be sure to connect the positive wire
to the “+” terminal and the negative wire to the “–” terminal, respectively.
In addition, the intelligent Touch Manager must be connected as a terminal to the wiring.
<Terminals location and conceptual connection diagram>
A intelligent Touch Manager (Rear face)
B iTM plus adaptor
C plus ADP IF (intelligent Touch Manager)
D plus ADP IF (iTM plus adaptor)
E iTM plus adaptor on which termination resistor must be enabled
Requirements that must be met
Cable type: CPEV or FCPEV cable
Core thickness: φ0.65 - 0.9 mm
Cable length: 50 meters or less in total for overall plus ADP IF wiring

Table of Contents

Related product manuals