EasyManua.ls Logo

Daikin FCQ35B7V1 - Functions of Thermistors

Daikin FCQ35B7V1
390 pages
Print Icon
To Next Page IconTo Next Page
To Next Page IconTo Next Page
To Previous Page IconTo Previous Page
To Previous Page IconTo Previous Page
Loading...
Functional concept ESIE05-04
2–4 Part 2 – Functional Description
3
1
2
4
5
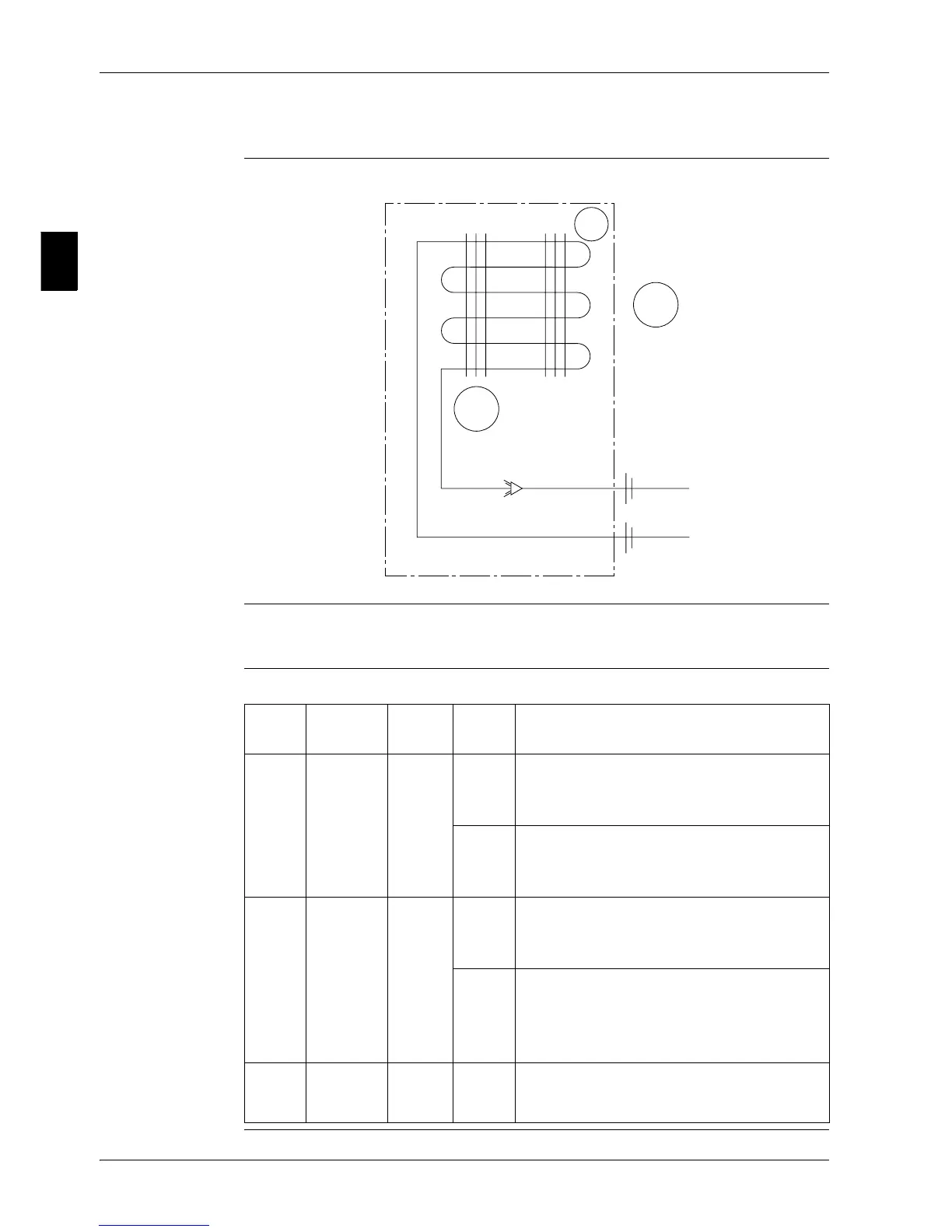
1.2 Functions of Thermistors
Locating the
thermistors
Remark Sensor R3T on indoor coil of FCQ35~60B7V1, FFQ35~60BV1, FBQ35~60B7V1 & FHQ35~60BUV1
is not used when the indoor units are connected to sky-air outdoor units (RR, RQ, RZQ).
Functions of the
thermistors
R1T
R2T
R3T
Ther-
mistor
Location
Wiring
symbol
Mode Function
1 Indoor air
return
R1T Cooling
Q Thermostat control
Q PMV control
Q General frequency control
Heating
Q Thermostat control
Q PMV control
Q General frequency control
2 Indoor
heat
exchanger
R2T Cooling
Q Compressor frequency control (target Te)
Q Inverter current protection control
Q Freeze-up control
Heating
Q Compressor frequency control (target Tc)
Q Inverter current protection control
Q Hot start control
Q Peak cut-off
3 Indoor
heat
exchanger
R3T Heating
Q Peak cut-off

Table of Contents

Other manuals for Daikin FCQ35B7V1

Related product manuals