EasyManua.ls Logo

Daikin FCQ35B7V1 - Fbq35, 50 B

Daikin FCQ35B7V1
390 pages
Print Icon
To Next Page IconTo Next Page
To Next Page IconTo Next Page
To Previous Page IconTo Previous Page
To Previous Page IconTo Previous Page
Loading...
General Outline ESIE05-04
1–14 Part 1 System Outline
3
1
1
4
5
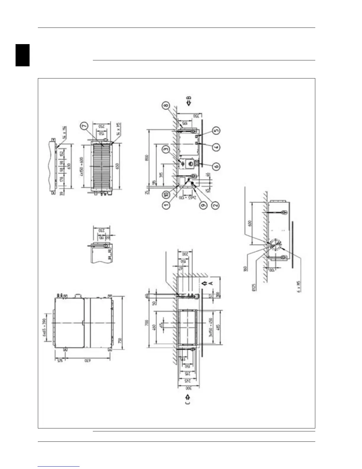
1.7 FBQ35, 50B
Outlook and
dimensions
The illustration below shows the outlook and the dimensions of the unit (mm).
(On circumference)
(Knock out hole)
(Air suction panel center)
Fresh air intake position
(Suspension position)
VIEW A
VIEW B
VIEW C
P.C.D.
NOTES:
1. Refer to ‘Outlook drawing for installing optional
accessories’ when installing optional accessories.
2. The required ceiling depth varies according to the
configuration of the specific system.
3. For maintenance of the air filter, it is necessary to
provide a service access panel according to the
installation method. (Refer to the ‘Filter installation
method’ drawing)
(Suspension bolt)
or more
(Service Space)

Table of Contents

Other manuals for Daikin FCQ35B7V1

Related product manuals