EasyManua.ls Logo

Daikin FCQ35B7V1 - Fhq125 B

Daikin FCQ35B7V1
390 pages
Print Icon
To Next Page IconTo Next Page
To Next Page IconTo Next Page
To Previous Page IconTo Previous Page
To Previous Page IconTo Previous Page
Loading...
General Outline ESIE05-04
1–30 Part 1 System Outline
3
1
1
4
5
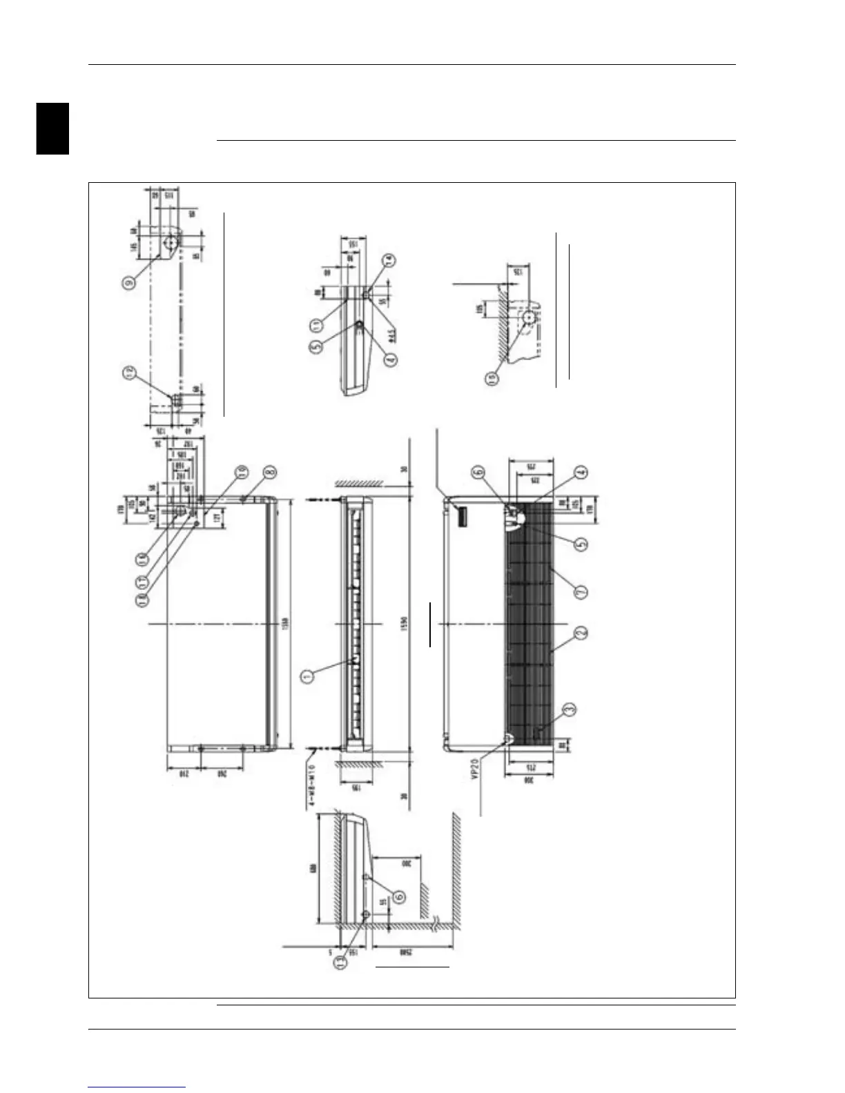
1.15 FHQ125B
Outlook and
dimensions
The illustration below shows the outlook and the dimensions of the unit (mm).
Position slit hole for taking out in piping back
or more
(Service Space)
Brand name plate
(Note 2)
Drain pipe
connection
(For left piping)
The front
Floor side
Obstacle
(Required space)
or more
For height installation
or more
(Required space)
(View from the front)
(Hanging position)
(Hanging position)
Hanging bolt
(Required space)
Position of the hole in the wall for
piping straight trough the wall
(View from the front)
or more
(Service Space)
NOTES:
1. Location of unit’s Name plate: Bottom of fan
housing inside the suction grill.
2. In case of using wireless remote controller, this
position will be a signal receiver. Refer to the
drawing of wireless remote controller for detail.
From the floor side

Table of Contents

Other manuals for Daikin FCQ35B7V1

Related product manuals