EasyManua.ls Logo

Denon AVR-X4300H

Denon AVR-X4300H
247 pages
To Next Page IconTo Next Page
To Next Page IconTo Next Page
To Previous Page IconTo Previous Page
To Previous Page IconTo Previous Page
Loading...
FUNCTIONAL BLOCK DIAGRAM
[AK4458]
014011794-E-00 2015/01
- 5 -
4. Block Diagram and Functions
MCLK
SDTI1/DSDR1
LRCK/DSDL1
CAD0_I2C/CSN/DIF
BICK/DCLK
SCL/CCLK/TDM1
SDA/CDTI/TDM0
PDN AV DD
Clock
Divider
DVSS TVDD
PS/CAD0_SPI
AOUTR1N
VREFH1
VREFL1
AVSS
AOUTL1P
AOUTR1P
PCM
Data
Interface
De-empha
sis
DSD
Data
Interface
8X
Interpolator
Control
Register
SCF
SCF
AOUTR2N
VREFH2
VREFL2
AOUTL2P
AOUTL2N
AOUTR2P
Vref
SDTI2/DSDL2
8X
Interpolator
SCF
SCF
Vref
Bias
I2C
AOUTR3N
VREFH3
VREFL3
AOUTL3P
AOUTL3N
AOUTR3P
8X
Interpolator
SCF
SCF
AOUTR4N
VREFH4
VREFL4
AOUTL4P
AOUTL4N
AOUTR4P
Vref
8X
Interpolator
SCF
SCF
Vref
SDTI3/DSDR2/TDMO1
SDTI4/DSDL3/TDMO2
DSDR3
DSDL4
DSDR4
VDD18
LDO
DZF/SMUTE
CAD1/DCHAIN
LDOE
DAT T
Soft Mute
DSD Filter
DAT T
Soft Mute
DAT T
Soft Mute
DSD Filter
DAT T
Soft Mute
DATT
Soft Mute
DSD Filter
DAT T
Soft Mute
DAT T
Soft Mute
DSD Filter
DAT T
Soft Mute
Modulator
Noise
Rejection
Filter
Modulator
Noise
Rejection
Filter
Modulator
Noise
Rejection
Filter
Modulator
Noise
Rejection
Filter
AOUTL1N
Figure 1. Block Diagram
PCM5100 (DIGITAL
:
IC321, IC322)
PCM5100 Block Diagram
PCM5100, PCM5101, PCM5102
SLAS764 MAY 2011
www.ti.com
DEVICE INFORMATION
TERMINAL FUNCTIONS, PCM510x
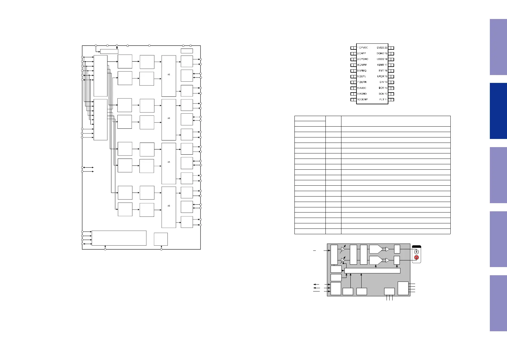
PCM510X (top view)
Table 2. TERMINAL FUNCTIONS, PCM510x
TERMINAL
I/O DESCRIPTION
NAME NO.
CPVDD 1 - Charge pump power supply, 3.3V
CAPP 2 O Charge pump flying capacitor terminal for positive rail
CPGND 3 - Charge pump ground
CAPM 4 O Charge pump flying capacitor terminal for negative rail
VNEG 5 O Negative charge pump rail terminal for decoupling, -3.3V
OUTL 6 O Analog output from DAC left channel
OUTR 7 O Analog output from DAC right channel
AVDD 8 - Analog power supply, 3.3V
AGND 9 - Analog ground
DEMP 10 I De-emphasis control for 44.1kHz sampling rate
(1)
: Off (Low) / On (High)
FLT 11 I Filter select : Normal latency (Low) / Low latency (High)
SCK 12 I System clock input
BCK 13 I Audio data bit clock input
DIN 14 I Audio data input
LRCK 15 I Audio data word clock input
FMT 16 I Audio format selection : I
2
S (Low) / Left justified (High)
XSMT 17 I Soft mute control : Soft mute (Low) / soft un-mute (High)
LDOO 18 - Internal logic supply rail terminal for decoupling
DGND 19 - Digital ground
DVDD 20 - Digital power supply, 3.3V
(1) Failsafe LVCMOS Schmitt trigger input
6
Copyright © 2011, Texas Instruments Incorporated
Audio Interface
8x Interpolation Filter
32bit ∆Σ Modulator
Current
Segment
DAC
Current
Segment
DAC
I/V I/V
Analog
Mute
Analog
Mute
Zero
Data
Detector
UVP/Reset
PLL Clock
Power
Supply
Ch. PumpPOR
Clock Halt
Detection
Advanced Mute Control
MCK
BCK
LRCK
CAPP
CAPM
VNEG
LINE OUT
DIN (i2s)
PCM510x
CPVDD (3.3V)
AVDD (3.3V)
DVDD (3.3V)
GND
PCM5100, PCM5101, PCM5102
SLAS764 MAY 2011
www.ti.com
Table 1. Differences Between PCM510x Devices
Part Number Dynamic Range SNR THD
PCM5102 112dB 112dB 93dB
PCM5101 106dB 106dB 92dB
PCM5100 100dB 100dB 90dB
spacer
Figure 1. PCM510x Functional Block Diagram
2 Copyright © 2011, Texas Instruments Incorporated
68
Caution in
servicing
Electrical Mechanical Repair Information Updating

Table of Contents

Other manuals for Denon AVR-X4300H

Related product manuals