EasyManua.ls Logo

Electrolux WTCS90ERB - C2 Multiconnector Boards Connectors Layout

Electrolux WTCS90ERB
88 pages
Print Icon
To Next Page IconTo Next Page
To Next Page IconTo Next Page
To Previous Page IconTo Previous Page
To Previous Page IconTo Previous Page
Loading...
Electrolux
EFS - Dishwashing Systems Platform
Electrolux Professional
DOC. NO. 5956.573.05 P. 6 4 / 8 8
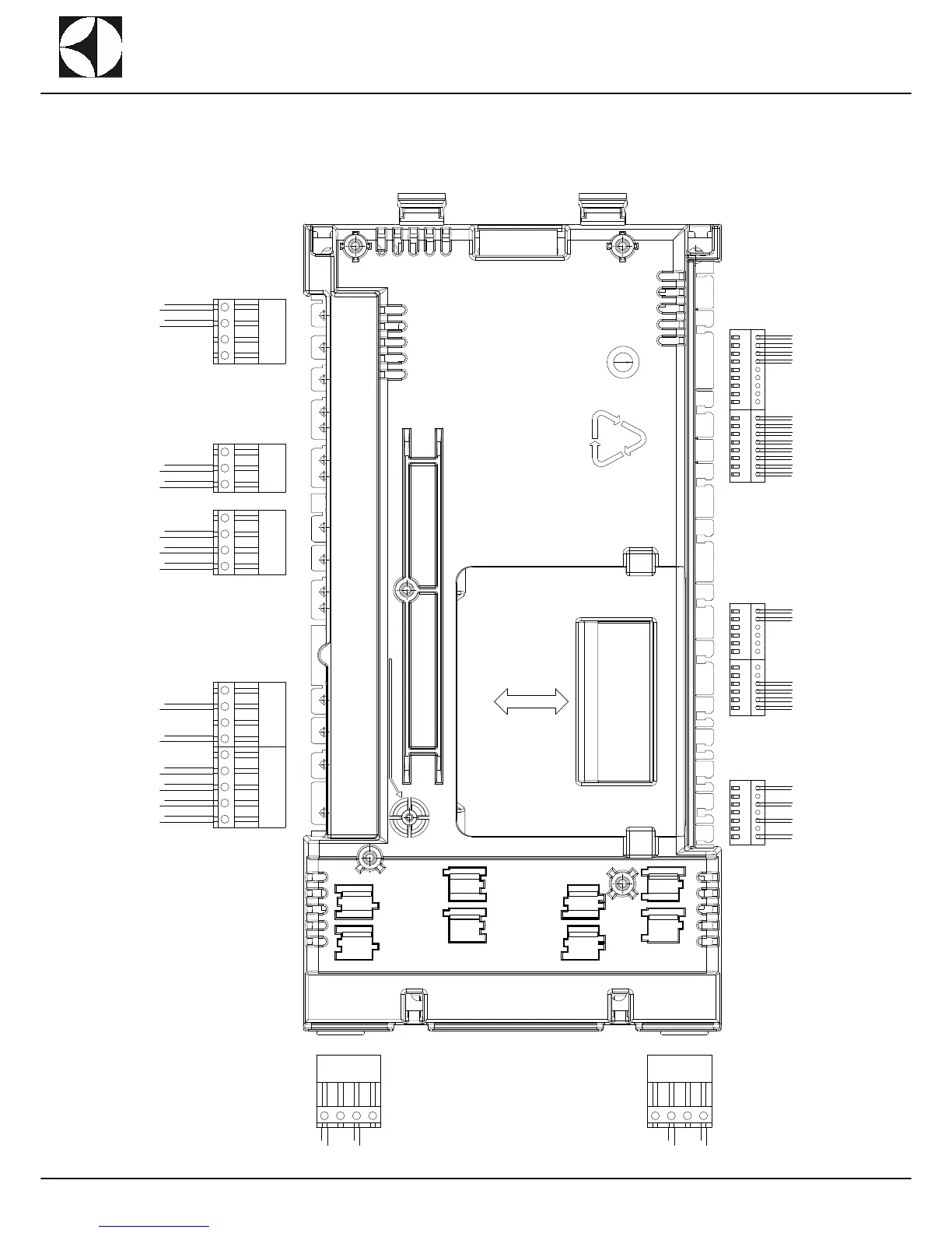
C2 MULTICONNECTOR BOARDS CONNECTORS LAYOUT
LAYOUT 5 PREWASH ( SHORT COMPACT )
6
5
4
3
2
1
9
8
7
10
11
12
00
9
1
F28
F27
F26
F25
F24
F23
F22
F21
F20
F19
F18
F17
F16
F15
F14
F13
F12
F11
F10
F9
F8
F7
F6
F5
F4
F3
F2
F1
X11
X10
X9
X8X7
X6
X5
X4
X3
X2
X1
F40
F39
F38
F37
F36
F35
F34
F33
F32
F31
F30
F29

Table of Contents

Related product manuals